Одноповерховий будинок з SIP-панелей, 181,9 кв.м.

Одноповерховий будинок з SIP-панелей, 181,9 кв.м.

Одноповерховий будинок з SIP-панелей, 181,9 кв.м.

Тип:

Будинок

Місце:

Україна

Комплектація будинку:

1) Фундамент :

  • залізобетонний пальово-ростверковий з чорновою утепленою стяжкою та з незнімною опалубкою із термоблоків
  • базовий ввід комунікацій – каналізація та електрика.


2) Домокомплект :

  • несучі стіни – SІP 160мм (10 мм OSB-3, виробництва EGGER, утеплювач HIRSCH Porozell, Австрія)
  • перегородки – SIP 120мм (10 мм OSB-3, виробництва EGGER, утеплювач HIRSCH Porozell, Австрія)
  • перекриття горища – SІP 200мм (10 мм OSB-3, виробництва EGGER, утеплювач HIRSCH Porozell, Австрія)
  • дах – кроквяна система, набір конструктивних елементів та кріплення


3) Вікна та двері :

  • енергоефективні, профіль – 5 камер, склопакет – 2 камери, зовнішня ламінація
  • утеплені металеві вхідні двері.


4) Покрівля : 

  • металочерепиця, Італія
  • монтаж водостічної системи, Польща
  • підшивка звисів даху та стелі тераси – металевий софіт


5) Фасадне оздоблення: 

  • утеплення  пінополістирол фасадний 100 мм
  • нанесення декоративної штукатурки KABE, Польща
  • комбінація з декоративним натуральним деревом (смерека, Україна)


6) Тераса (на вибір)

  • несуча дерев’яна платформа, натуральна терасна дошка (смерека) /несуча металева платформа, терасна композитна дошка.
Замовити консультацію
Одноповерховий будинок з SIP-панелей, 181,9 кв.м.

Огляд будинку

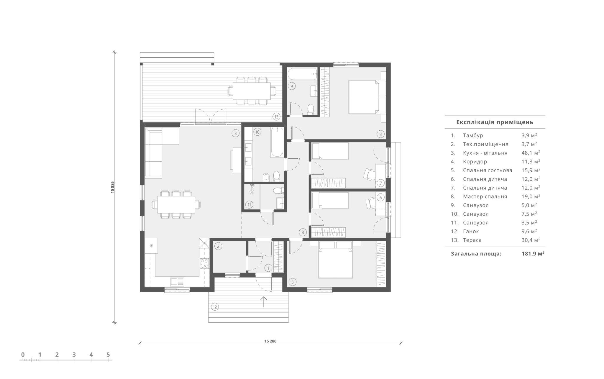
Експлікація приміщень:

Тамбур – 3,9 кв.м
Тех.приміщення – 3,7 кв.м
Кухня – вітальня – 48,1 кв.м
Коридор – 11,3 кв.м
Спальня гостьова – 15,9 кв.м
Спальня дитяча – 12,0 кв.м
Спальня дитяча – 12,0 кв.м
Мастер спальня – 19,0 кв.м
Санвузол – 5,0 кв.м
Санвузол – 7,5 кв.м
Санвузол – 3,5 кв.м
Ганок – 9,6 кв.м
Тераса – 30,4 кв.м

Загальна площа будинку – 181,9 кв.м

Наші менеджери нададуть безкоштовну консультацію

Скористуйтесь формою, щоб отримати оріентовну ціну за будинок під Ваші потреби.

Замовити консультацію