Spacious house made of SIP-panels for a family of two, 174,6 sq.m.

Spacious house made of SIP-panels for a family of two, 174,6 sq.m.

Spacious house made of SIP-panels for a family of two, 174,6 sq.m.

Project number:

185 - ROZ

Type:

House

Location:

Ukraine

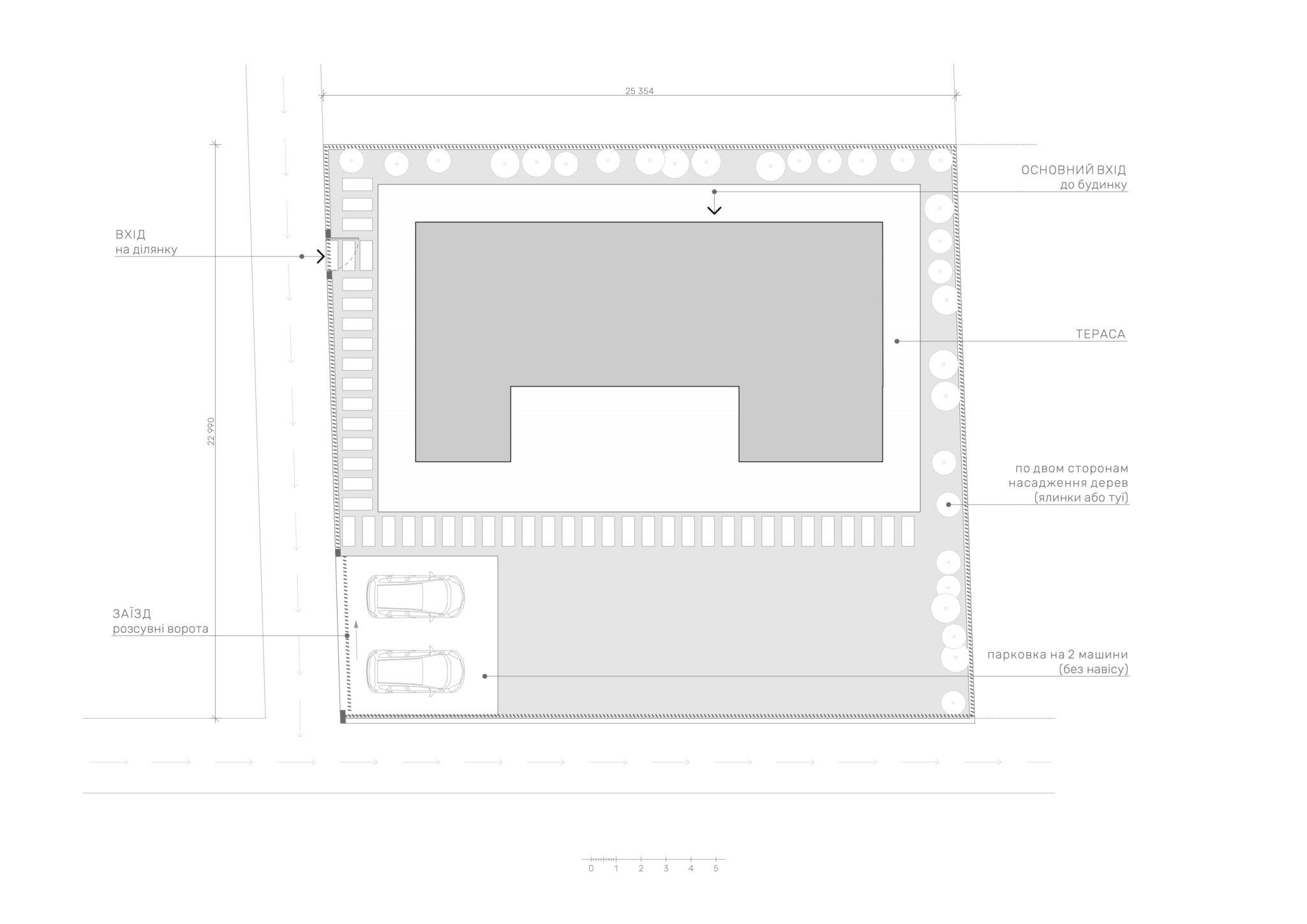
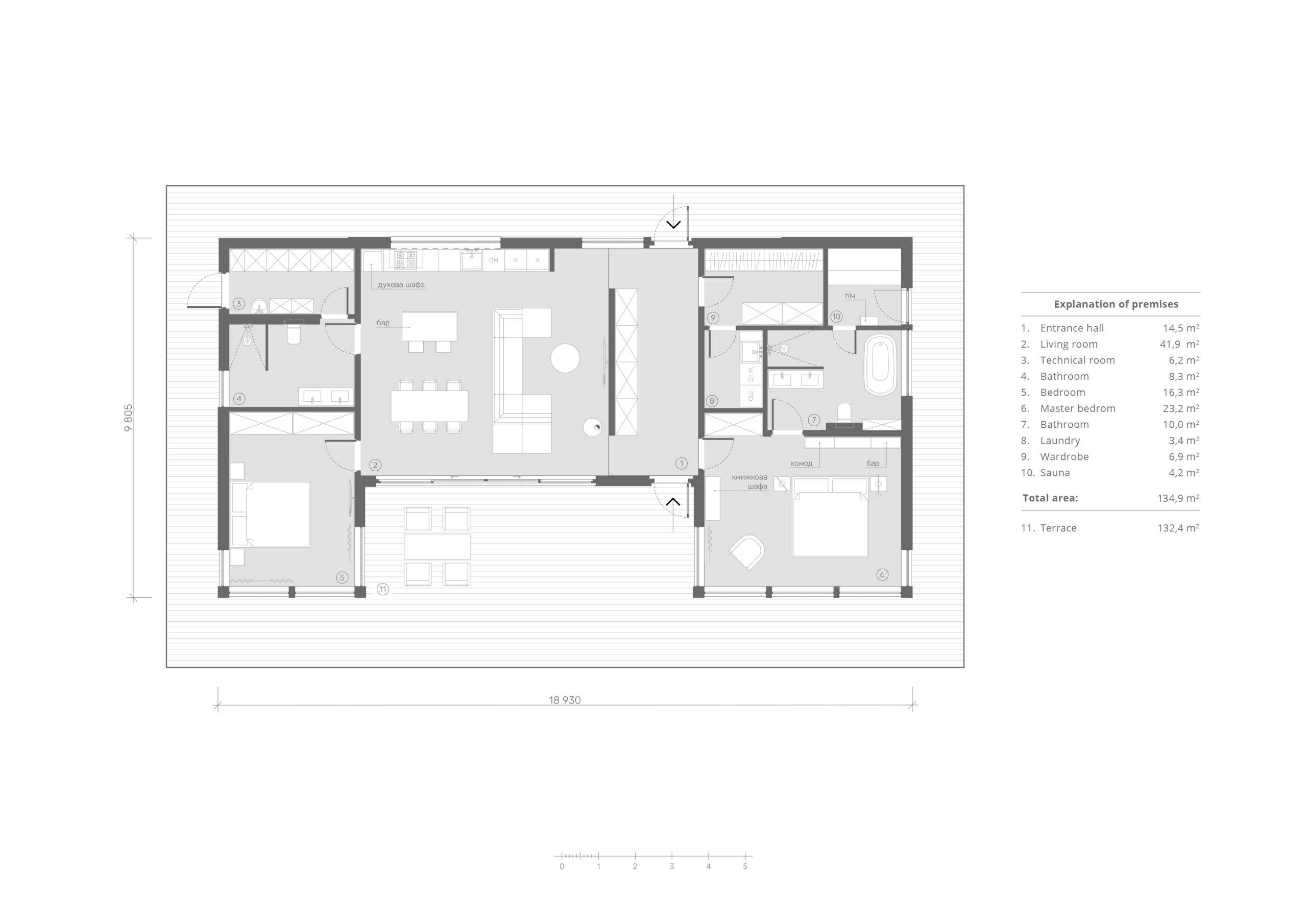
A spacious house for a family of two. The house includes two bedrooms, two bathrooms, a sauna, a large living room with a fireplace, and technical rooms. A terrace is designed around the house.

The architecture features a flat roof with perimeter cantilevers; the ceiling in the living room area is higher than in the rest of the house, adding a sense of spaciousness. Calm, natural shades in the facade finish blend seamlessly with the surroundings, while large windows make the house an extension of the landscape.

The main rooms face the lake. The house has two primary entrances: one from the main facade through a panoramic terrace and another from the rear side. Positioned opposite each other, both entrances feature glass panels, creating an effect of openness and transparency.

Order a consultation
Spacious house made of SIP-panels for a family of two, 174,6 sq.m.

House review

Spacious house made of SIP-panels for a family of two, 174,6 sq.m.

Our managers will provide a free consultation

Use the form to get an approximate price for a house for your needs.

Order a consultation