Private house made of SIP panels with a terrace and a canopy, 248 sq.m.

Private house made of SIP panels with a terrace and a canopy, 248 sq.m.

Private house made of SIP panels with a terrace and a canopy, 248 sq.m.

Project number

175 - HTN

Type:

House

Location:

Ukraine

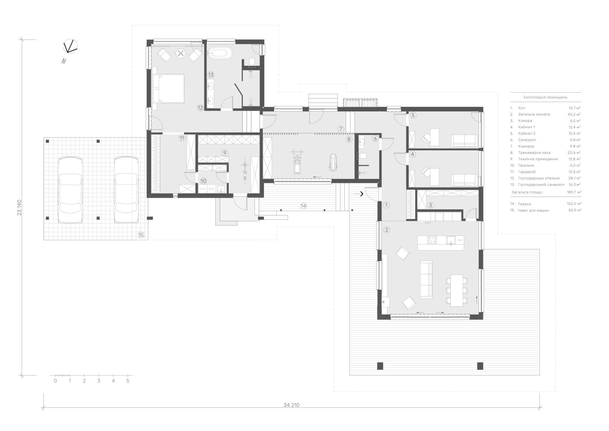
A large private house for a young couple. Conditionally, it can be divided into 3 zones – master bedroom zone, gym, recreation zone. The house has 1 bedroom, 2 offices (which can be used as guest rooms), 2 bathrooms, a wardrobe, a technical unit, a gym and a living room. There is a carport for two cars near the house.

The passage to the main entrance is made through a small terrace, which is connected to the main terrace. A fire pit and gardens are planned on the territory. The site is filled with existing trees that have been preserved. The landscape of the site, the function of the house and the viewpoints contributed to the formation of the house.

Order a consultation
Private house made of SIP panels with a terrace and a canopy, 248 sq.m.

House review

Private house made of SIP panels with a terrace and a canopy, 248 sq.m.

Our managers will provide a free consultation

Use the form to get an approximate price for a house for your needs.

Order a consultation