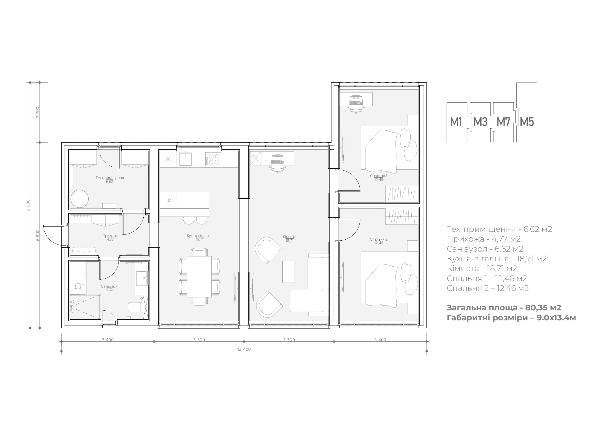
Modular house with extended comfort, 80,35 м²

Modular house with extended comfort, 80,35 м²

Modular house with extended comfort, 80,35 м²

Project number:

106 - MDH

Type:

Modular house

The price of the house in a full set:

6,321,144.00 including VAT

Dreaming of a cozy home in nature, built quickly and without hassle? The 106-MDH is your key to comfortable, ecological living exactly where your heart desires.

This is a balanced space for happiness: a harmonious blend of modern design and care for the environment. The natural wood facade and warm SIP panels mean not only beauty but also a healthy microclimate and heating savings.

Feel the harmony inside:

  • A cozy kitchen-living area – the perfect place for family moments.
  • 2 bright bedrooms – your private space for rest.
  • A modern, fully equipped bathroom.

The 106-MDH modular home is your ideal choice if you:

  • Are looking for a balanced, cozy, and modern home.
  • Value ecology, speed, and freedom of location choice.
  • Strive for a high-quality turnkey solution.
  • Dream of a comfortable life closer to nature for yourself or your family.

Reliable warm structure: Your home is built on a reinforced metal frame with energy-efficient SIP panels (OSB-3 Egger, Austria; Graphite HIRSCH POROZELL insulation, Austria) for warmth and savings.

  • Floor: SIP 230mm (200mm insulation)
  • Load-bearing walls: SIP 160mm (140mm)
  • Roof: SIP 220mm (200mm), protected by Sikaplan PVC membrane (Switzerland)
  • Partitions: SIP 120mm (100mm)

106-MDH – your ideal place awaits!

Order a consultation
Modular house with extended comfort, 80,35 м²

Modular house with extended comfort, 80,35 м²

The 106-MDH modular home by Ecopan is built to the same high standards of quality and sustainability as the company’s other models:

Modern & Durable exterior: Facade features natural spruce board with Remmers paint (Germany), mineral wool insulation, and Eurovent membrane (Poland). Premium Rehau SYNEGO windows (Germany) – 7 chambers, double-glazed units, «warm mounting». Secure composite entrance door with KALE locks.

Thoughtful Turnkey Interior:

  • Finishes: Flooring – stylish quartz vinyl tiles (IVC Group, Belgium; Tarkett, Poland), ideal for underfloor heating; MDF skirting. Walls – LDF panels by Egger (Austria) and CLEAF (Italy), quartz vinyl in the bathroom.
  • Kitchen with island: Fully equipped with stylish furniture (Egger/Cleaf, MULLER hardware) and all necessary appliances: refrigerator, induction hob, oven/microwave, extractor hood, dishwasher (45 cm), food waste disposer, sink & faucet (graphite).
  • Comfortable bathroom: Fitted with high-quality fixtures: wall-hung toilet with concealed cistern, thermostatic shower system, hygienic shower, sink with faucet (graphite). Also includes a glass shower partition, vanity unit, mirror with LED lighting, and electric towel warmer.

Your ideal climate and comfort:

  • Climate control: Electric underfloor heating (6 zones, EasyTherm thermostats); centralized VENTS ventilation with heat recovery; 3 GREE air conditioners (Wi-Fi).
  • Electrical & Lighting: Reliable system (LAPP, Hager, ABB, Schneider Electric), ample sockets. Modern lighting: spotlights, LED profiles, LED mirrors (2 pcs). Effective facade lighting (NORDLUX, LED).
  • Hot water: Energy-efficient boiler (Class A+, 80/50L).
  • Furniture: Includes ready-made sets for the kitchen, bathroom, and hallway.
Our managers will provide a free consultation

Use the form to get an approximate price for a house for your needs.

Order a consultation