Modular house for quick construction, 70,52 м²

Modular house for quick construction, 70,52 м²

Modular house for quick construction, 70,52 м²

Project number:

105 - MDH

Type:

Modular house

The price of the house in a full set:

5,576,687.00 including VAT

Looking for the perfect balance of coziness, modern style, and a responsible attitude towards nature? The 105-MDH modular home is your standard for comfortable living, built quickly and ready for installation exactly where you dream – by a lake, in the forest, or with a mountain view.

This is your reliable and cozy home, created with care for nature. The natural wood facade, energy-efficient SIP panels, and Rehau windows guarantee warmth, a healthy microclimate, and savings. The high quality of construction and materials ensures durability and your everyday comfort.

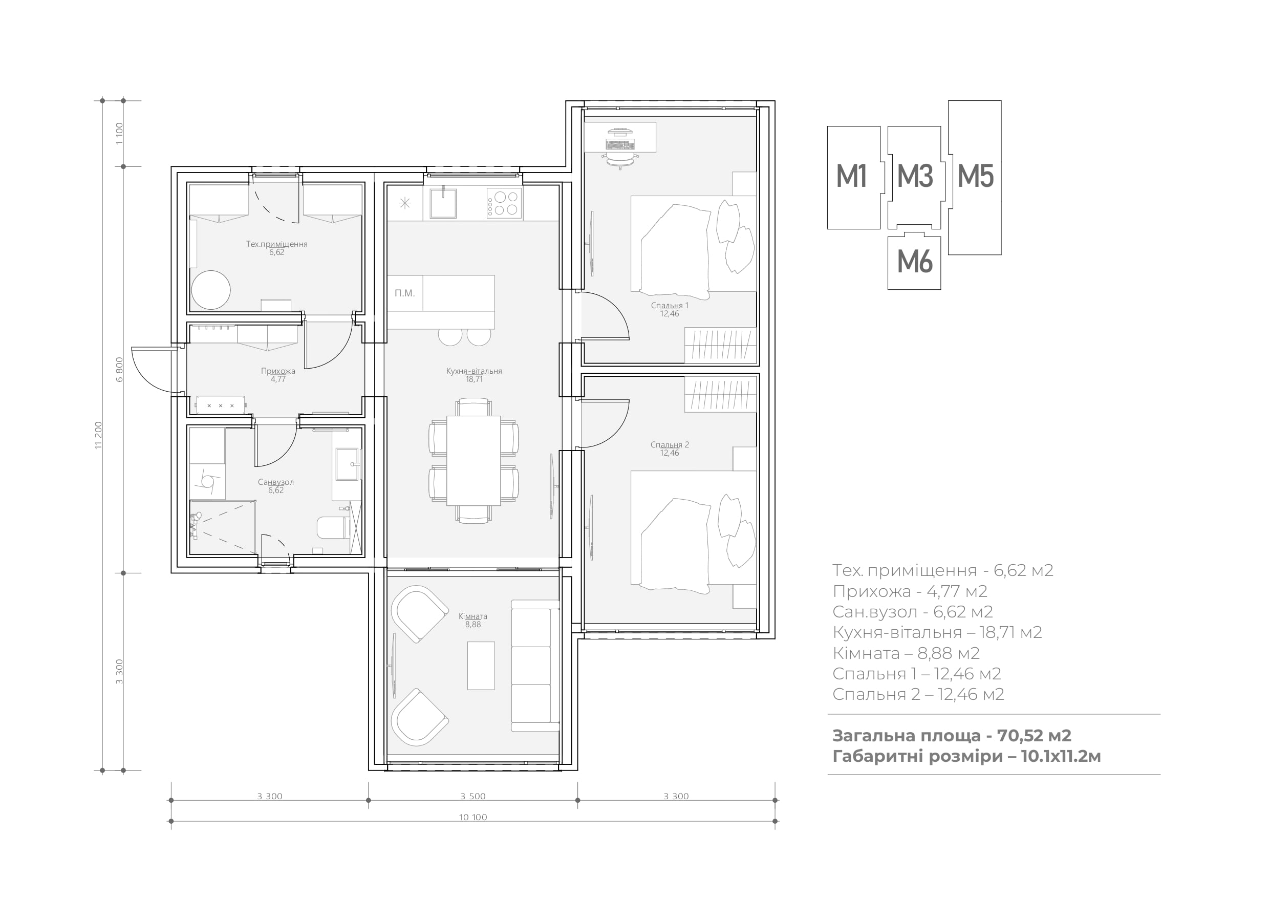
A well-thought-out space for your life:

  • A bright kitchen-living area – the functional and cozy center of your home for family and friends.
  • Two comfortable bedrooms – your private zone for peace and rejuvenation.
  • A modern, fully equipped bathroom with a stylish design.

Advantages of the 105-MDH you will appreciate:

  • Realize your dream anywhere: Thanks to modular technology, your home can appear where you feel happiest, without limitations on location choice.
  • Quick housewarming: We value your time! The house will be built in a short time.
  • Eco-standard: The house is built with care for the environment, using certified materials and energy-efficient technologies (SIP, Rehau, heat recovery).

The 105-MDH modular home is an excellent choice if you:

  • Are looking for an optimally sized, functional home for a family or couple.

Seek to live ecologically, value modern technologies, speed, and freedom of location choice.

Order a consultation
Modular house for quick construction, 70,52 м²

Modular house for quick construction, 70,52 м²

Reliable foundation:

Your home is built on a reinforced steel frame with warm SIP panels (OSB-3 Egger, Austria; Graphite HIRSCH POROZELL insulation, Austria) for exceptional comfort and durability:

  • Floor: SIP 230mm (200mm insulation)
  • Walls: SIP 160mm (140mm insulation)
  • Roof: SIP 220mm (200mm insulation) with Sikaplan PVC membrane (Switzerland)
  • Partitions: SIP 120mm (100mm insulation)

Stylish exterior:

The facade is made from natural spruce, protected with Remmers paint (Germany), insulated with mineral wool, and covered with Eurovent membrane (Poland). High-quality Rehau SYNEGO windows (Germany, 6 units) – 7-chamber profiles, double-glazed units, installed with «warm mounting» technology for superior insulation. Reliable composite entrance doors with thermal break and KALE locks for enhanced security.

Turnkey interior:

  • Finishes: Quartz vinyl flooring (IVC Group, Tarkett), MDF skirting, LDF wall panels by Egger/Cleaf.
  • Kitchen: Functional furniture (Egger/Cleaf, MULLER hardware), full set of appliances: refrigerator, induction cooktop, oven/microwave, extractor hood, dishwasher, waste disposer, sink, and graphite faucet.
  • Modern bathroom: Wall-hung toilet with installation system, thermostatic shower system, hygienic shower, sink with mixer. Added comfort: glass shower partition, vanity unit, 3 LED mirrors, heated towel rail.

Comfortable climate and convenience:

  • Heating: Underfloor heating (EasyTherm thermostats)
  • Ventilation: Centralized VENTS system with heat recovery
  • Cooling: 3 GREE air conditioners (Wi-Fi)
  • Electrical system: Reliable components (LAPP, Hager, ABB, Schneider Electric), modern lighting: spotlights (20+), LED profiles, facade lighting (NORDLUX, LED)
  • Hot water: Reliable boiler
  • Furniture: Complete sets for the kitchen, bathroom, and hallway
Our managers will provide a free consultation

Use the form to get an approximate price for a house for your needs.

Order a consultation