House made of SIP panels on pantone, 68,5 sq.m.

House made of SIP panels on pantone, 68,5 sq.m.

House made of SIP panels on pantone, 68,5 sq.m.

Project number:

183 - VYS

Type:

House

Location:

Ukraine

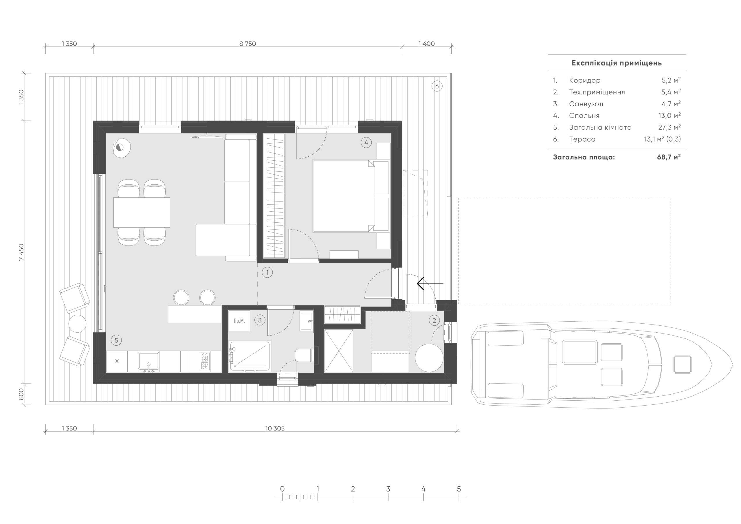
House for recreation on a pontoon. It is intended for both permanent and periodic stay.

The main feature of the house is that it is completely autonomous and does not require connection to city networks.

 

The house has two main rooms – a living room with a kitchen and a bedroom. The living room has a large sofa, a fireplace, and a dining table with a view of the terrace through a large window.

A large full bathroom is located opposite the bedroom. The house has a lot of storage space.

The terrace is designed on three sides of the house.

Order a consultation
House made of SIP panels on pantone, 68,5 sq.m.

Inspection of the house

House on a pontoon, 68.5 sq.m.

Our managers will provide a free consultation

Use the form to get an approximate price for a house for your needs.

Order a consultation