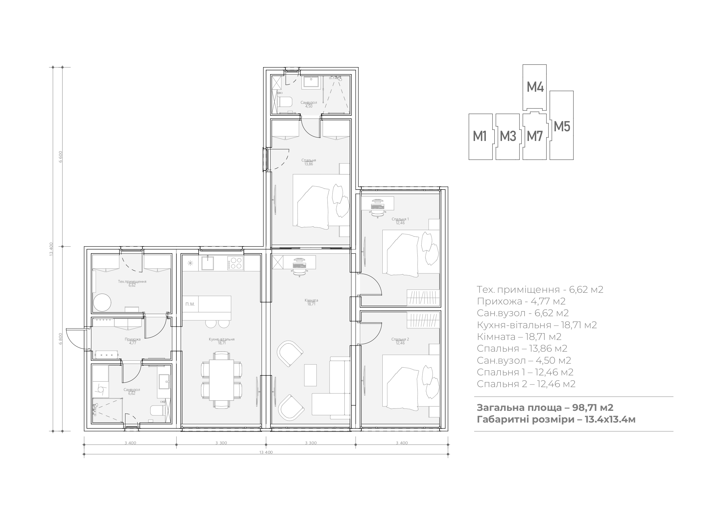
Energy-efficient modular house, 98,71 м²

Energy-efficient modular house, 98,71 м²

Energy-efficient modular house, 98,71 м²

Project number

107 - MDH

Type:

Modular house

The price of the house in a full set:

7,765,520.00 including VAT

Imagine a morning when the first rays of sunlight break through the pines, filling your home with soft, natural light. You step out with a cup of coffee onto the spacious terrace, breathe in the crisp air, and feel a profound sense of peace. This isn’t just a dream – it’s your life in the 107-MDH modular home by ECOPAN.

107-MDH is the embodiment of modern architecture, perfectly harmonizing with the surrounding nature. Its elegant facade, clad in natural wood, breathes nature, inviting it inside through large panoramic Rehau Synego windows.

Inside, you’ll find a space that feels like home:

  • The heart of the home: A spacious kitchen-living room with an island – the perfect setting for family dinners, cozy evenings, and lively gatherings with friends.
  • Personal sanctuary: Three cozy bedrooms that serve as your private retreats for rest and rejuvenation.
  • Flawless comfort: Two stylish, fully equipped bathrooms with premium fixtures and thoughtful design.
  • Smart functionality: A convenient entryway and plenty of storage space for your belongings.

107-MDH is more than just a house:

  • Your personal stage: The large terrace becomes your favorite spot for relaxing, outdoor dining, or stargazing on warm nights.
  • Comfort technology: Energy-efficient SIP panels with graphite insulation, a heat recovery ventilation system, underfloor heating, and air conditioners ensure the perfect microclimate all year round.
  • Quality in every detail: From premium finishing materials (Egger, Cleaf, Tarkett) to reliable fittings and modern engineering solutions – we’ve taken care of everything to make your home not only beautiful but also durable and reliable.

Ecopan 107-MDH – a space for freedom and inspiration. Allow yourself to live with quality!

Order a consultation
Energy-efficient modular house, 98,71 м²

Energy-efficient modular house, 98,71 м²

107-MDH – Your space of comfort and warmth

The 107-MDH modular home by ECOPAN blends modern design, natural materials, and cutting-edge technology for exceptional living. Built with energy-efficient SIP panels (Graphite HIRSCH POROZELL insulation, Austria; OSB-3 boards, Egger, Austria), it offers durability and warmth.

Solid foundation:

  • Floor: SIP 230mm (200mm insulation)
  • Load-bearing walls: SIP 160mm (140mm insulation)
  • Roof: SIP 220mm (200mm insulation) with Sikaplan PVC membrane (Switzerland)
  • Interior partitions: SIP 120mm (100mm insulation)
  • Reinforced steel frame for stability

Style and quality in every detail:

  • Facade: Natural spruce cladding with Remmers paint (Germany), mineral wool insulation, and Eurovent membrane (Poland)
  • Windows: Rehau SYNEGO (Germany) – 7-chamber profiles, double-glazed units for light and sound insulation
  • Doors: Composite entrance doors with thermal break and KALE locks for security.

Cozy, turnkey interior:

  • Flooring: Quartz vinyl (IVC Group, Belgium; Tarkett, Poland)
  • Walls: High-quality laminated chipboard (Egger, Austria; CLEAF, Italy) and quartz vinyl in bathrooms
  • Ceilings: White matte stretch for a clean finish
  • Dream Kitchen Island: Custom furniture (Egger/Cleaf, MULLER fittings) and full appliance set (Italy, Germany, Poland)
  • Bathrooms: Wall-mounted toilets, thermostatic showers, towel warmers, and water heaters

Perfect climate control:

  • Heating: Electric underfloor heating with smart thermostats
  • Ventilation: Centralized VENTS system with heat recovery
  • Air Conditioning: Three GREE inverter air conditioners with Wi-Fi

Reliable electrical system:

  • Premium components (LAPP, Hager, ABB, Schneider Electric)
  • Modern LED lighting and stylish facade lights by NORDLUX

Furniture includes ready-made solutions for hallways and bedrooms, crafted in Ukraine for a personal touch.

Our managers will provide a free consultation

Use the form to get an approximate price for a house for your needs.

Order a consultation