Compact two-storey house constructed from SIP-panels, 108 sq.m.

Compact two-storey house constructed from SIP-panels, 108 sq.m.

Compact two-storey house constructed from SIP-panels, 108 sq.m.

Project number:

162 - BIL

Type:

House

Location:

Ukraine

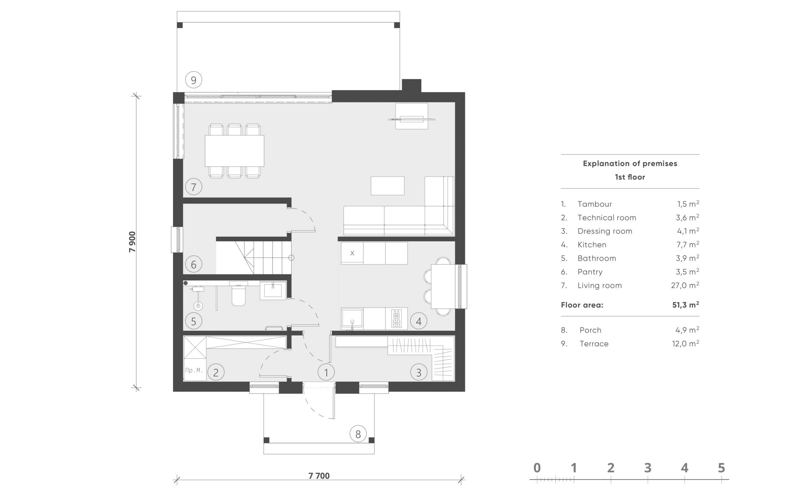
A compact two-story house with a total area of 108 m2. The house contains all the necessary zones for a comfortable stay.

On the first floor there is a porch, tech. room (3.6 m2), dressing room (4.1 m2), bathroom (3.9 m2), utility room (3.5 m2), compact kitchen (7.7 m2) and a spacious living room (27 m2) with a fireplace and exit to the open terrace.

The second floor accommodates an entrance hall (3.9 m2), a bathroom (3.2 m2), two children’s rooms of 10.2 m2 each with their own access to the balcony (8.8 m2) and two bedrooms (9.4 and 10.6 m2).

The decoration of the facade combines plaster and wood, the roof is made of bituminous tiles. A successful combination of materials gives the house an original appearance.

Order a consultation
Compact two-storey house constructed from SIP-panels, 108 sq.m.

House review

Compact two-storey house constructed from SIP-panels, 108 sq.m.

Our managers will provide a free consultation

Use the form to get an approximate price for a house for your needs.

Order a consultation