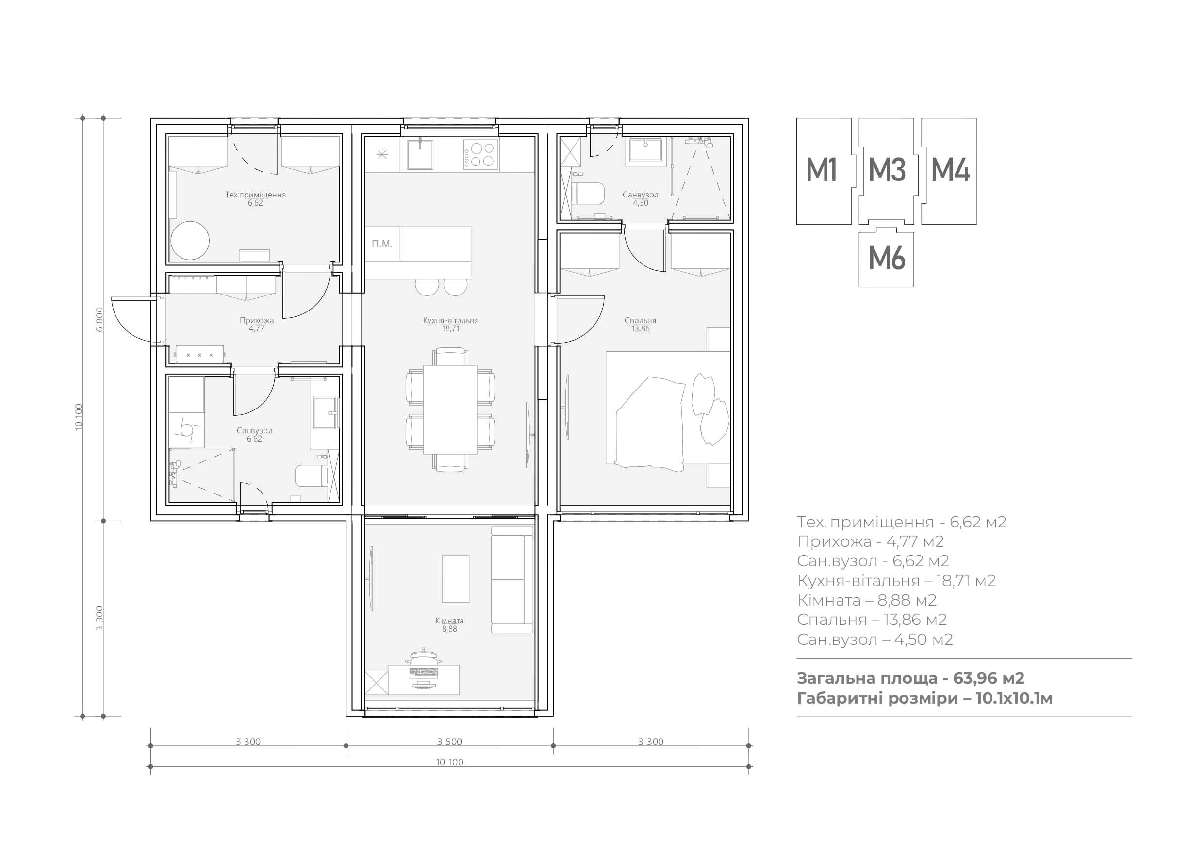
Basic modular home for starters, 63.96 m²

Basic modular home for starters, 63.96 m²

Basic modular home for starters, 63.96 m²

Project number:

104 - MDH

Type:

Modular house

The price of the house in a full set:

5,057,915.00 including VAT

Imagine a home for your personal comfort: coziness, modern style, harmony with nature, built quickly and exactly where you dream. This is 104-MDH – your personal eco-space.

Created with care for you and the environment: natural wood facade, energy-efficient SIP panels, and Rehau windows ensure warmth, a healthy microclimate, and savings. This is your choice for quality, comfort, and responsible living.

A space created for you:

  • A bright kitchen-living area – the functional heart of the home for living and gatherings.
  • A cozy bedroom – your private territory of peace.
  • Two (!) modern bathrooms – maximum comfort and convenience in fully equipped spaces.

Why is 104-MDH your ideal choice? Freedom of location thanks to modular technology, quick move-in without years of waiting, ecological technologies (SIP, Rehau, heat recovery), and uncompromising turnkey quality.

104-MDH – a smart, modern, and ecological choice for comfortable living. Create your ideal space quickly and responsibly with Ecopan!

Order a consultation
Basic modular home for starters, 63.96 m²

Basic modular home for starters, 63.96 m²

Reliable Foundation:
Your home is built on a reinforced steel frame with energy-efficient SIP panels (OSB-3 Egger, Austria; Graphite HIRSCH POROZELL insulation, Austria) for maximum warmth and durability:

  • Floor: SIP 230mm (200mm insulation)
  • Walls: SIP 160mm (140mm insulation)
  • Roof: SIP 220mm (200mm insulation) with Sikaplan PVC membrane (Switzerland)
  • Partitions: SIP 120mm (100mm insulation)

Stylish Exterior:
Natural spruce cladding, protected with Remmers paint (Germany), insulated with mineral wool, and Eurovent membrane (Poland). Premium Rehau SYNEGO windows (Germany, 6 units) – 7-chamber profiles, double-glazed units, and «warm installation» for superior insulation. Reliable composite entrance doors with thermal break and KALE locks for enhanced security.

Turnkey Interior for Your Comfort:

  • Finishes: Quartz vinyl flooring (IVC Group, Tarkett), MDF skirting, LDF wall panels by Egger/Cleaf, quartz vinyl in bathrooms. White matte stretch ceiling, interior doors «Papa Carlo» (MDF, 4 pcs)
  • Kitchen: Functional furniture (Egger/Cleaf, MULLER hardware), full set of appliances: refrigerator, induction cooktop, oven/microwave, extractor hood, dishwasher (45 cm), waste disposer, sink, and faucet (graphite)
  • Two Bathrooms: wall-hung toilets with installation systems, thermostatic shower systems, hygienic showers, sinks with mixers (graphite), glass shower partitions, vanities, shelves

Your Ideal Climate and Convenience:

  • Heating: Underfloor heating (EasyTherm thermostats)
  • Ventilation: Centralized VENTS system with heat recovery
  • Cooling: 2 GREE air conditioners (Wi-Fi)
  • Electrical System: Reliable components (LAPP, Hager, ABB, Schneider Electric), modern lighting: spotlights (20+), LED profiles, facade lighting (NORDLUX, LED)
  • Hot Water: 2 boilers (80L/50L)
  • Furniture: Complete sets for kitchen, bathrooms, hallway, and bedroom
Our managers will provide a free consultation

Use the form to get an approximate price for a house for your needs.

Order a consultation