A house made of SIP panels, 56 sq.m.

Type:

House

Place:

Ukraine

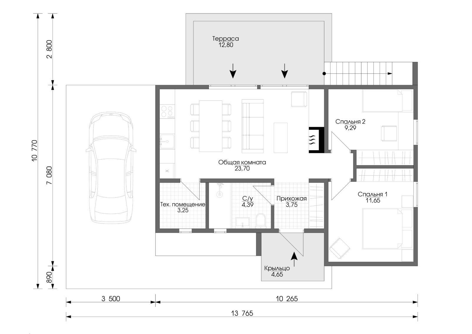
A compact one-story cottage with a total area of ​​56 sq.m. made in a modern style.A simple design allows you to build such a house in a short time, adding lightness to it. From the outside, the house looks small, but inside it is quite spacious. The house is adapted specifically for a small plot or for a plot with dense surrounding buildings. The project envisages a large terrace, located on the roof of the building and closed from the street side by a high parapet. At the same time, the internal planning of the house is quite logical and rational. Despite the small area, the house has all the functional components, such as two bedrooms, a kitchen combined with the living room, a bathroom and a utility room. The project is intended for the comfortable living of a young family, which, due to an active lifestyle, does not need a bigger house, and prefers to live in a stylish and beautiful house.

Order a consultation
A house made of SIP panels, 56 sq.m.

House overview

Building area: 85.02 sq.m
Total area: 56.03 sq.m
Living area: 44.64 sq.m
Area of ​​premises: 44.64 sq.m

Our managers will provide a free consultation

Use the form to get an approximate price for a house for your needs.

Order a consultation