Сучасний будинок з SIP панелей, 268 кв.м.

Тип:

Будинок

Місце:

Україна

Сучасний світлий будинок для великої родини. Загальна площа будинку складає 267,7 м.кв та 166,1 м.кв. площа літніх приміщень. У цьому будинку кожен знайде собі місце за смаком.

Замовити консультацію
Сучасний будинок з SIP панелей, 268 кв.м.

Огляд будинку

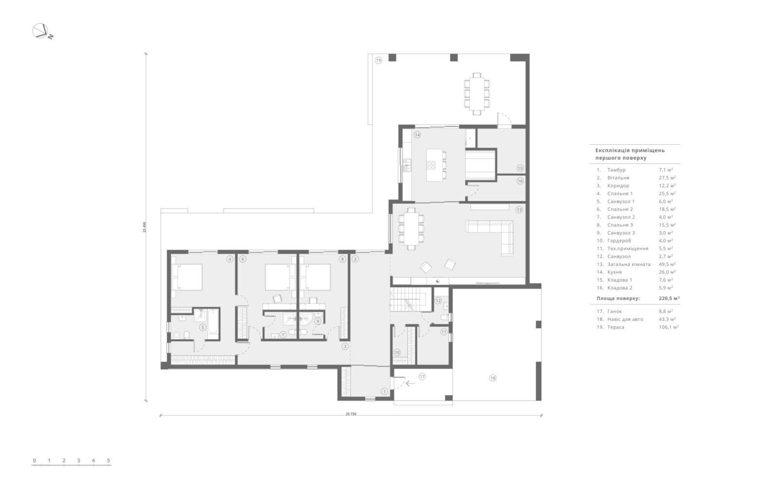
На першому поверсі розміщено дві дитячі (15,5 та 18,5 м.кв) та майстер-спальня (25,5 м.кв). У кожній із спалень розташований окремий санвузол та гардеробна зона. Простора вітальня (49,5 м.кв), в якій приємно збиратися вечорами для спільних переглядів фільмів та теплих розмов. З вітальні ми потрапляємо в кухню (26 м.кв), суміщену з двома місткими коморами (7,6 та 5,9 м.кв) у цій зоні точно не виникне проблем зі зберіганням барбекю та всього додаткового інвентарю. З кухні виходимо на подовжену терасу (106,1 м.кв), що примикає прямо до басейну –  ідеальне місце для відпочинку та смачних літніх вечерь, а з протилежного боку будинку розміщена вхідна група та навіс для двох авто. На другому поверсі маємо дві гостьові кімнати по 15,8 м.кв з окремими санвузлами (3,3 м.кв). Тут Вашим гостям буде максимально комфортно залишитися на ніч, а вранці вийти на терасу другого поверху і насолодитися першими сонячними променями і ефектним видом на басейн.

Наші менеджери нададуть безкоштовну консультацію

Скористуйтесь формою, щоб отримати оріентовну ціну за будинок під Ваші потреби.

Замовити консультацію