Приватний житловий будинок, 132 кв.м.

Тип:

Будинок

Місце:

Україна

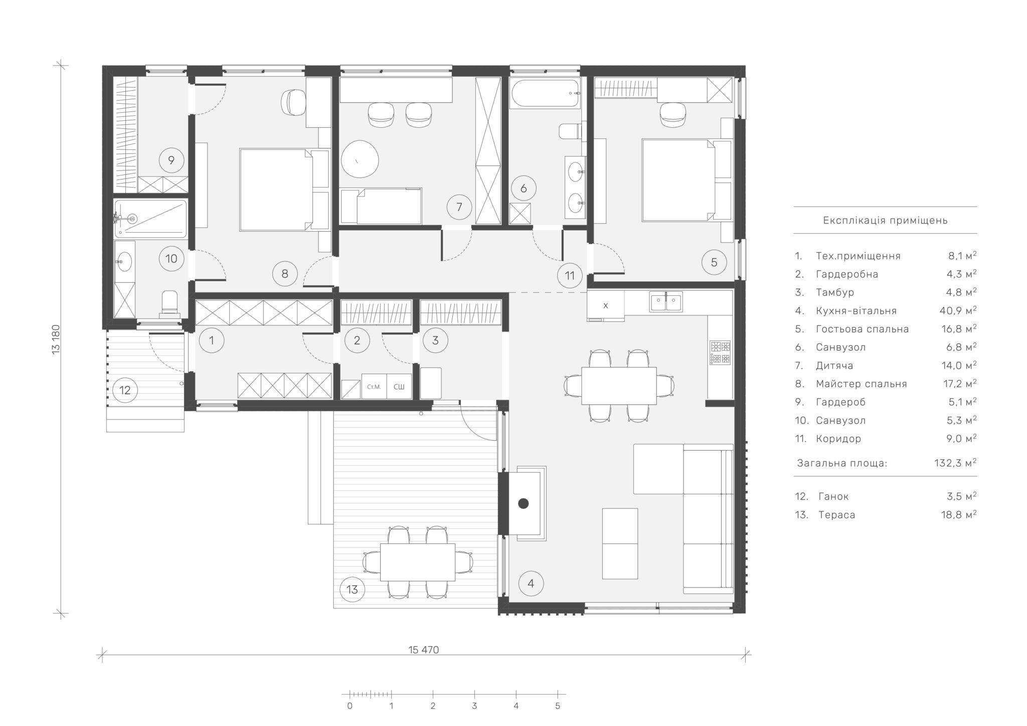
Приватний житловий будинок на одну сім’ю. Дві спальні кімнати, два санвузли, гардероб, технічні приміщення та велика вітальня з каміном. Проєкт розроблявся для західних регіоднів України, тому ми обрали таку форму даху, палітру кольорів та матеріалів. Основною відмінністю цього проєкту є відкрита тераса, яка також слугує ганком. Ми вирішили розмістити будинок в задній частині ділянки, щоб основна територія виходила до вулиці. При вході розмістили навіс для машин та господарську будівлю, а збоку альтанку з зоною барбекю. Г-подібна форма будинку утворює внутрішній простір та робить ділянку більш приватною. В плануванні ми розмежували два спальні блоки: майстер блок з окремим санвузлом і гардеробом відокремлений технічним приміщенням від другої спальні, яка може слугувати дитячою кімнатою або гостьовою.

Замовити консультацію
Приватний житловий будинок, 132 кв.м.

Огляд будинку

Приватний житловий будинок, 132 кв.м.

Наші менеджери нададуть безкоштовну консультацію

Скористуйтесь формою, щоб отримати оріентовну ціну за будинок під Ваші потреби.

Замовити консультацію