Одноповерховий будинок з SIP-панелей, 216 кв.м.

Одноповерховий будинок з SIP-панелей, 216 кв.м.

Одноповерховий будинок з SIP-панелей, 216 кв.м.

Тип:

Будинок

Місце:

Україна

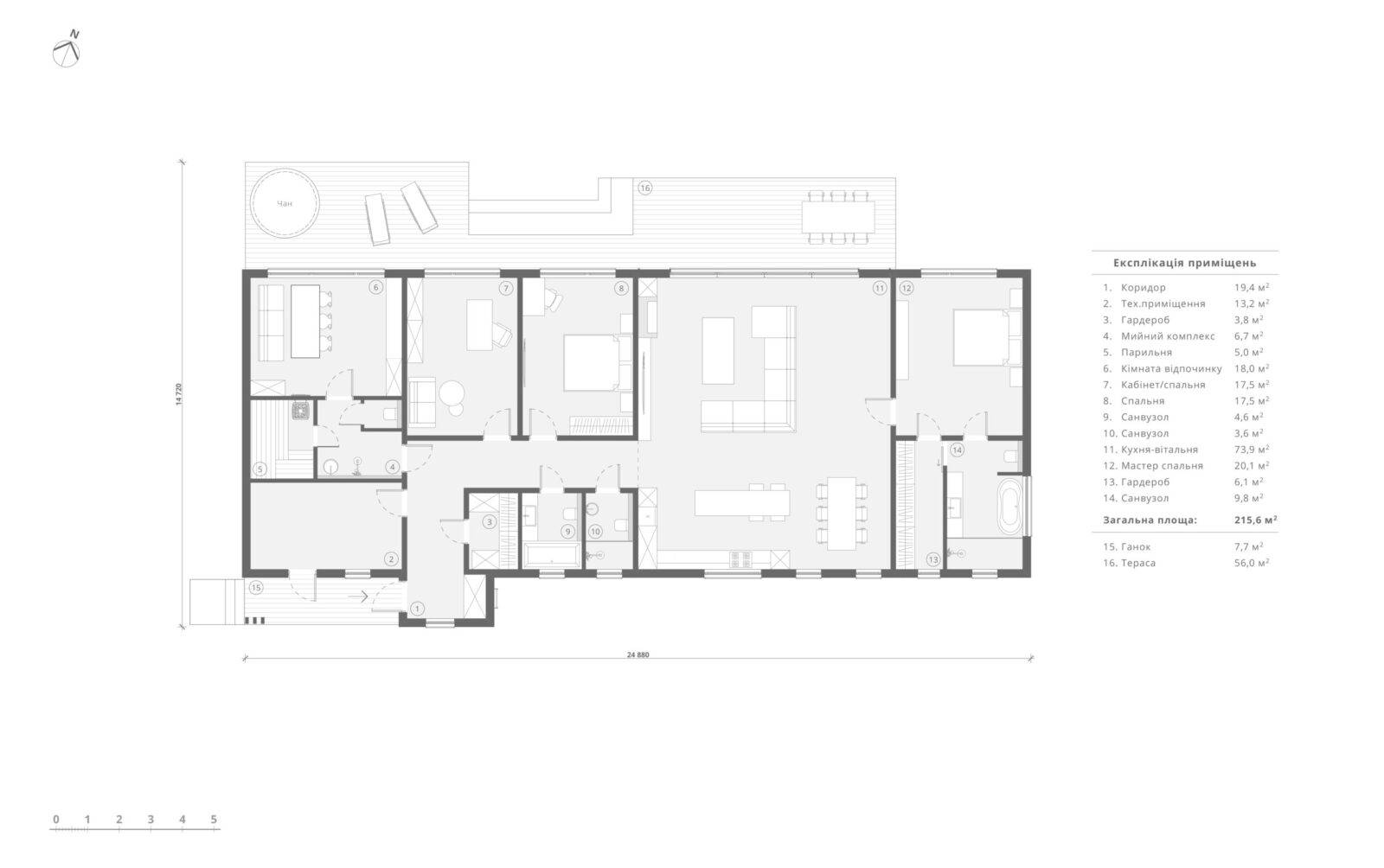
Шикарный стильний одноповерховий будинок, мрія сучасної родини. Його загальна площа 215,6м2 + ганок 7,7м2 та тераса 56м2. Перевагою даного будинку є продумане зонування та поєднання під одним дахом різних функцій. При вході розташовується тех.приміщення (13,2м2), до якого можна потрапити і напряму із вулиці та закритий гардероб (3,8м2). Окремо парна зона з мийним комплексом (6,7м2), парильнею (5м2) та кімнатою відпочинку (18м2). Є свій вихід на терасу, де можна погрітися у чані, чи спуститися до відкритого бассейну. Ця частина тераси відокремлена від основної сходами, на практиці таке рішення є дуже зручним. У будинку передбачена гостьова спальня (17,5м2) та кабінет (17,5м2).  Таке планування дозволяє у майбутньому без добудов отримати 2 дитячі кімнати. Поруч розташовуються два сан.вузли із ванною (4,6м2) та душем (3,6м2). Окрасою цього проекту є центральна зона, кухня-вітальня (73,9м2),  де родина проводитиме час разом, готуватиме їжу, зустрічатиме гостей. В цій частині будівлі висота стелі вище чотирьох метрів та великі панорамні вікна наповнюють простір повітрям. Є свій вихід на терасу, де можна проводити теплі вечори, збиратися за великим столом, готувати барбекю, відпочивати. Окрема зона для господарів із спальнею (20,1м2), власним гардеробом (6,1м2) та великим сан.вузлом(9,8м2). Ззовні будинок завжди буде стильно виглядати за рахунок поєднання на фасаді дерева, камню та штукатурки. Вдень підкорює своїми простими, геометричними, строгими формами, а ввечері правильна  підсвітка створює казкову атмосферу затишку.

Замовити консультацію
Одноповерховий будинок з SIP-панелей, 216 кв.м.

Огляд будинку

Одноповерховий будинок з SIP-панелей, 216 кв.м.

Наші менеджери нададуть безкоштовну консультацію

Скористуйтесь формою, щоб отримати оріентовну ціну за будинок під Ваші потреби.

Замовити консультацію