Одноповерховий будинок з SIP-панелей

Тип:

Будинок

Місце:

Україна

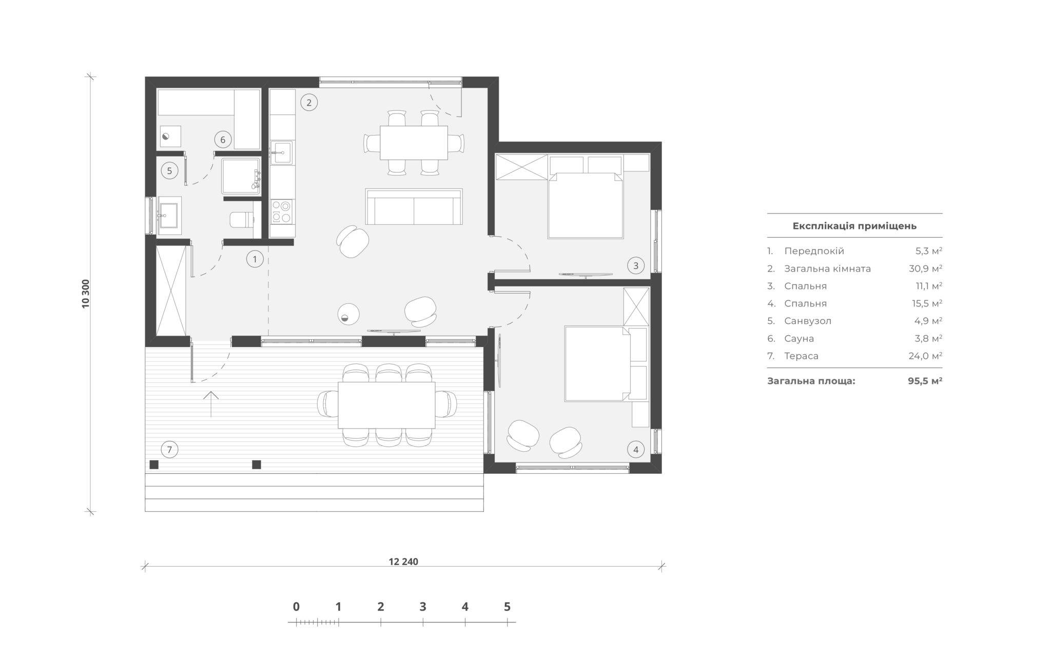
Експлікація приміщень:

Передпокій – 5,3 кв.м
Кухня-вітальня – 30,9 кв.м
Спальня – 11,1 кв.м
Спальня 2 – 15,5 кв.м
С/в – 4,9 кв.м
Парна – 3,8 кв.м
Тераса – 24,0 кв.м

Загальна площа будинку – 95,5 кв.м

Замовити консультацію
Одноповерховий будинок з SIP-панелей

Огляд будинку

1) Фундамент :

  • пальово – гвинтовий
  • багатовиткові вузько-лопатеві гвинтові палі, цинкове антикорозійне покриття

2) Домокомплект :

  • обв’язувальний несучий дерев’яний брус з гідроізоляцією
  • підлога – SІP 200 мм (10 мм OSB-3, виробництва EGGER, утеплювач HIRSCH Porozell, Австрія)
  • несучі стіни – SІP 160мм (10 мм OSB-3, виробництва EGGER, утеплювач HIRSCH Porozell, Австрія)
  • перегородки – SIP 120мм (10 мм OSB-3, виробництва EGGER, утеплювач HIRSCH Porozell, Австрія)
  • дах – SІP 200мм (10 мм OSB-3, виробництва EGGER, утеплювач HIRSCH Porozell, Австрія)

3) Вікна та двері :

  • енергоефективні, профіль – 5 камер, склопакет – 2 камери, зовнішня ламінація
  • утеплені металеві вхідні двері.

4) Покрівля :

  • влаштування плоскої покрівлі, ПВХ мембрана, Швейцарія
  • влаштування водостічної системи

5) Фасадне оздоблення:

  • вентильований дерев’яний фасад
  • смерека, Україна
  • тонуючий антисептик для деревини Tikkurila, Фінляндія

6) Тераса (на вибір)

  • несуча дерев’яна платформа, натуральна терасна дошка (смерека) /несуча металева платформа, терасна композитна дошка.
Наші менеджери нададуть безкоштовну консультацію

Скористуйтесь формою, щоб отримати оріентовну ціну за будинок під Ваші потреби.

Замовити консультацію