Індивідуальний житловий будинок з SIP панелей, 146 кв.м.

Індивідуальний житловий будинок з SIP панелей, 146 кв.м.

Індивідуальний житловий будинок з SIP панелей, 146 кв.м.

Тип:

Будинок

Місце:

Україна

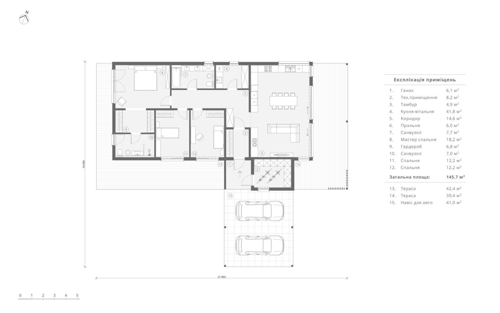
Індивідуальний житловий будинок на 3 спальні кімнати.  Будинок прямокутної форми зі скатним дахом. Вздовж трьох сторін розміщені тераси та навіс для двох машин.  Основна тераса розміщена біля вітальні. Всі житлові кімнати запроєктовані з великими панорамними вікнами. Майстер блок, розміщений в кінці будинку,  складається з спальні (18,2м.кв), гардеробу і санвузлу (7 м.кв.). Дві інші спальні (по 12,2 м.кв.) мають вихід на терасу. В будинку є ще один загальний санвузол, пральня і технічне приміщення. Вітальня включає в себе велику кухню, оснащену всім необхідним, великий обідній стіл на 8 персон та зона відпочинку біля каміну.

Замовити консультацію
Індивідуальний житловий будинок з SIP панелей, 146 кв.м.

Огляд будинку

Індивідуальний житловий будинок з SIP панелей, 146 кв.м.

Наші менеджери нададуть безкоштовну консультацію

Скористуйтесь формою, щоб отримати оріентовну ціну за будинок під Ваші потреби.

Замовити консультацію