ГОТЕЛЬ З РЕСТОРАНОМ

Тип:

Готель

Місце:

Україна

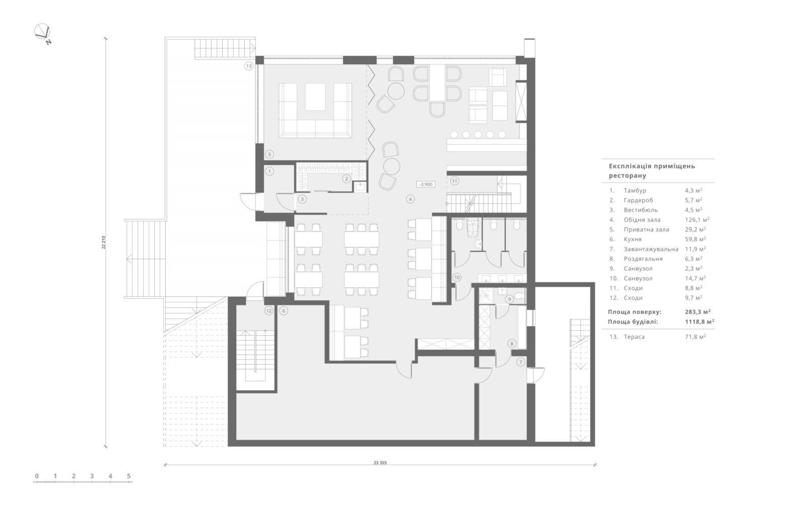
Будівля готелю на 4 поверхи. Основні два поверхи – готель з вхідною групою зі сторони дороги на 18 номерів. Нижні два поверхи – ресторан на 60 гостей з лаундж зоною. Ресторан має дві великі  зали, барну стійку та кухню. Лаундж зона з камінною залою, місцем для гри в більярд, покер, караоке та міні кінотеатром. Родзинкою комплексу є велика кімната для ретріту. Крім того, будівля запроєктована з урахуванням принципів інклюзивності.  Біля готелю розміщений адміністративний блок для обслуговування комплексу. Перед готелем запроєктована парковка. САУНА З СІНОВАЛОМ Будівля умовно ділиться на 3 зони: зона відпочинку, спа зона, сіновал на другому поверсі. Вітальня з атріумом, великими вікнами і каміном загальною площею 41м.кв.  Велика кількість місць на диванах та на барі біля каміну, роблять її особливим місцем, навіть, якщо ви не любите банні процедури. В бані (21,3 м.кв.) розмістили вікно, з видом на ріку та гори. Біля неї кабінет пілінгу та масажу. На другому поверсі сіновал (40 м.кв.) з терасою. Найкрутішою деталлю сауни вважаємо металевий дзеркальний фасад, він робить її дуже особливою.

Замовити консультацію
ГОТЕЛЬ З РЕСТОРАНОМ

Огляд будинку

ГОТЕЛЬ З РЕСТОРАНОМ

Наші менеджери нададуть безкоштовну консультацію

Скористуйтесь формою, щоб отримати оріентовну ціну за будинок під Ваші потреби.

Замовити консультацію