Двоповерховий будинок з SIP-панелей, 255 кв.м.

Двоповерховий будинок з SIP-панелей, 255 кв.м.

Двоповерховий будинок з SIP-панелей, 255 кв.м.

Тип:

Будинок

Місце:

Україна

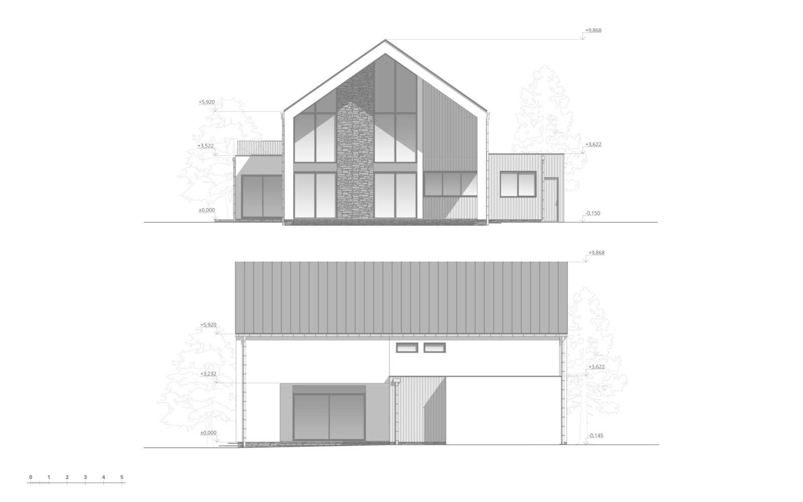
Ефектний будинок для однієї сім’ї. Основна ідея будинку – всі житлові приміщення розміщені на першому поверсі. Другий поверх – гостьова і робоча зона. Загальна площа будинку складає 255 м.кв та 66 м.кв. тераси і балкон.

Замовити консультацію
Двоповерховий будинок з SIP-панелей, 255 кв.м.

Огляд будинку

На першому поверсі розміщені майстер блок 35 м.кв., з власним санвузлом та гардеробом, дитяча спальня 23 м.кв., гостьовий санвузол 4,8 м.кв., кухня з технічним приміщенням і велика вітальня 44 м.кв. На другому поверсі дві гостьові спальні 16 і 18 м.кв., санвузол з роздільним душем, хол 22 м.кв. з робочим місцем і видом на вітальню та панорамними вікнами. Плюсом є наявність гаража 24 м.кв. У цього будинку є одна дуже характерна риса. Хоча він становить всього два поверхи, висота будинку в конику – 9 метрів. А торцева стіна, яка виходить в сад, на 80% складається з скління, що візуально прибирає бар’єр між будинком і навколишнім середовищем і робить сад природним продовженням вітальні.  Саме так виглядає будинок мрії, якщо у вас буде можливість побачити його вживу, ви в цьому переконаєтесь

Наші менеджери нададуть безкоштовну консультацію

Скористуйтесь формою, щоб отримати оріентовну ціну за будинок під Ваші потреби.

Замовити консультацію