Двоповерховий будинок з SIP-панелей,138 кв.м.

Двоповерховий будинок з SIP-панелей,138 кв.м.

Двоповерховий будинок з SIP-панелей,138 кв.м.

Тип:

Будинок

Місце:

Україна

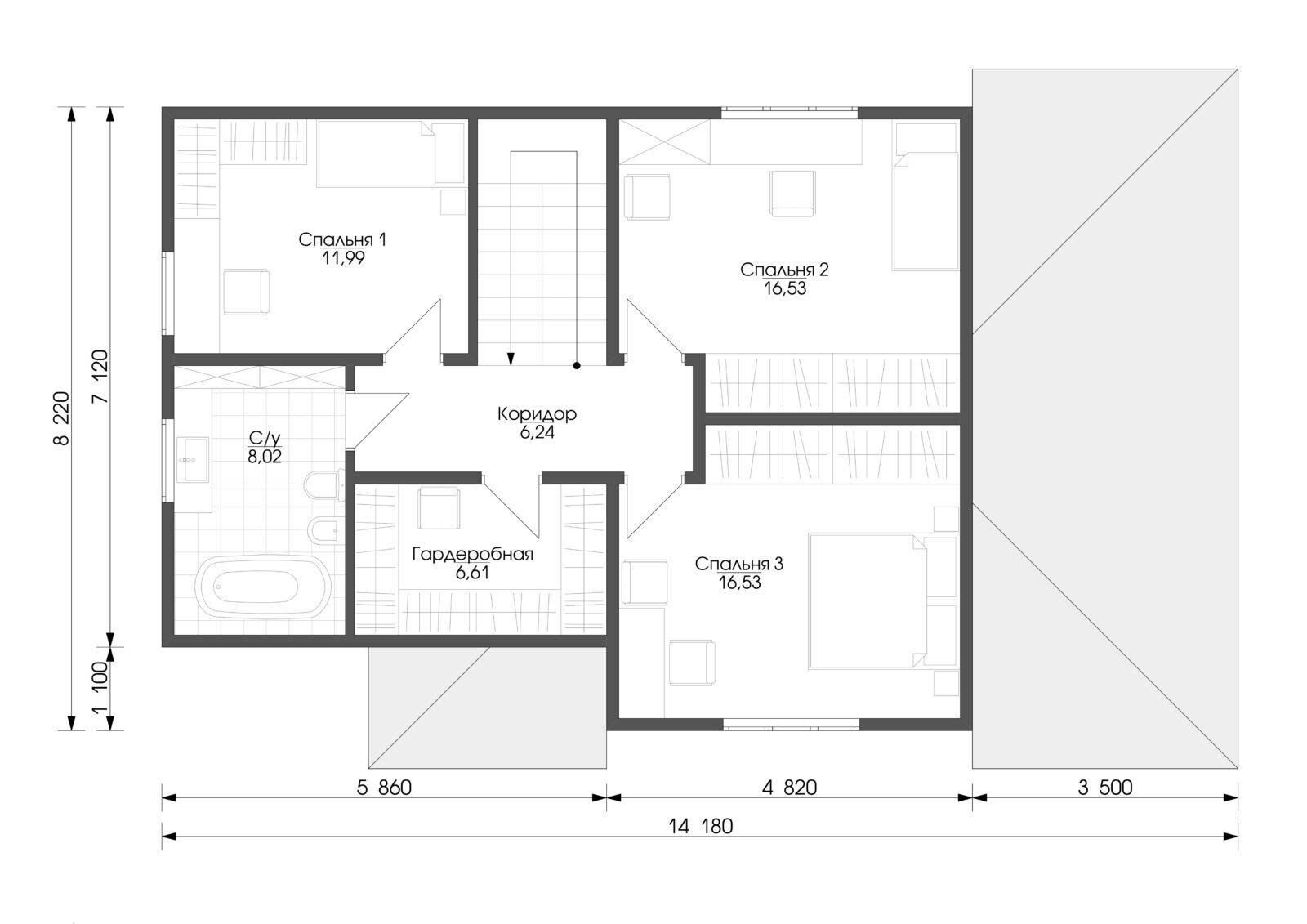
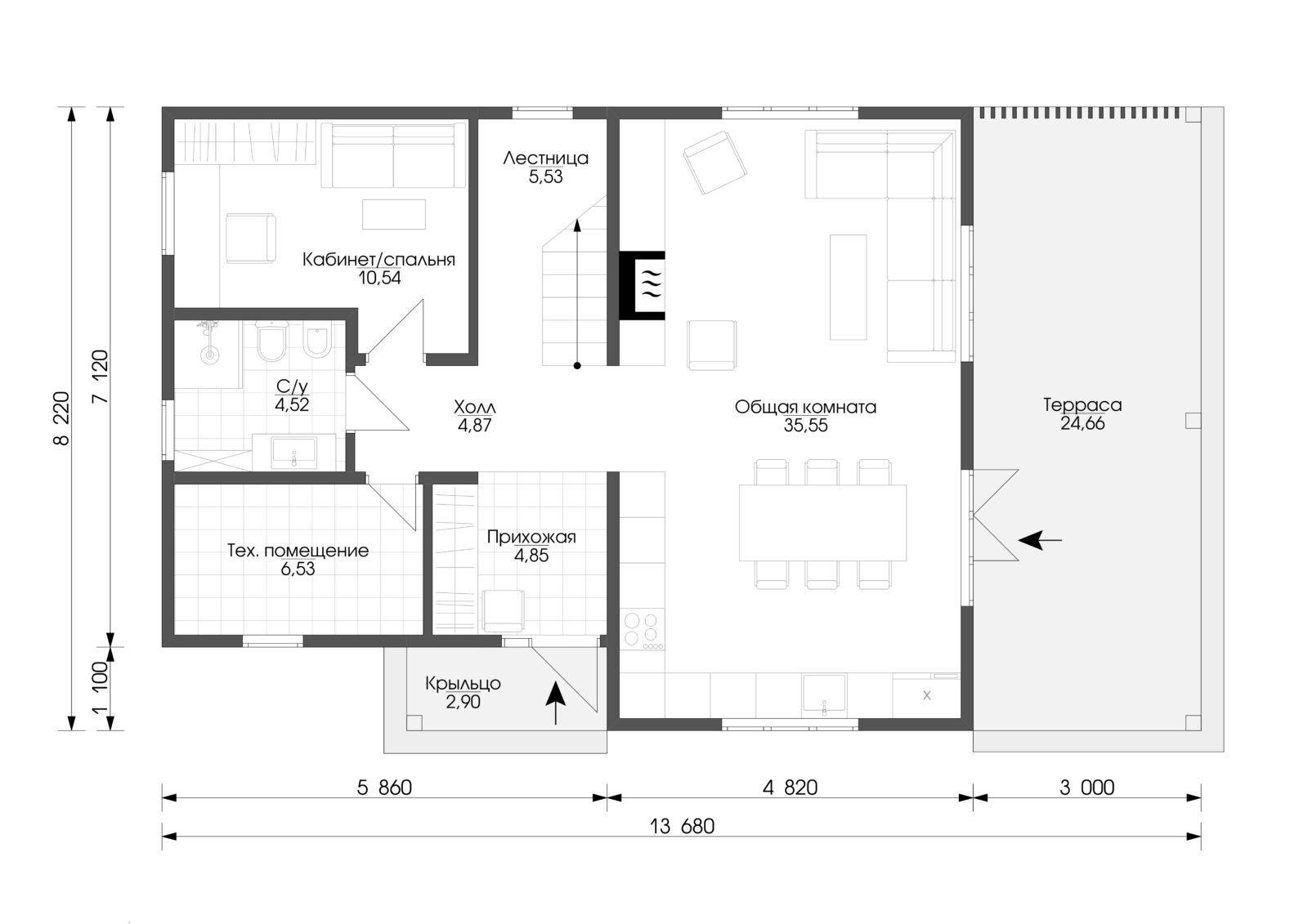
Функціональний двоповерховий будинок в сучасному стилі. Прекрасний варіант для сім’ї з 5-6 чоловік. Проста форма, двосхилий дах, відносно невелика площа будинку сприяють значній економії коштів під час будівництва та експлуатації. На першому поверсі розташована велика і комфортабельна вітальня, просторий хол і невеликий санвузол. Загальна кімната є ідеальним місцем для сімейного відпочинку і зустрічей з друзями. На другому поверсі передбачені три затишні спальні з гардеробом і просторою ванною. Крита, красиво оформлена тераса подарує незабутній літній відпочинок, тут ви зможете приготувати барбекю в будь-яку погоду.

Замовити консультацію
Двоповерховий будинок з SIP-панелей,138 кв.м.

Огляд будинку

Площа забудови: 108.9 кв.м
Загальна площа: 138.31 кв.м
Житлова площа: 45.14 кв.м
Площа приміщень: 27.56 кв.м
Ціна: від $360/м²

Наші менеджери нададуть безкоштовну консультацію

Скористуйтесь формою, щоб отримати оріентовну ціну за будинок під Ваші потреби.

Замовити консультацію