Дуплекс з SIP панелей, 228 кв.м.

Тип:

Будинок

Місце:

Україна

Світлий та затишний будинок, в якому проживатимуть аж дві родини, адже це Таунхаус на 228 м2.  Такий варіант ідеально підходить для великої родини. Складається він з двох однакових, але дзеркально розташованих частин, таким чином поєднуючи вхідні зони в одному місці.

Замовити консультацію
Дуплекс з SIP панелей, 228 кв.м.

Огляд будинку

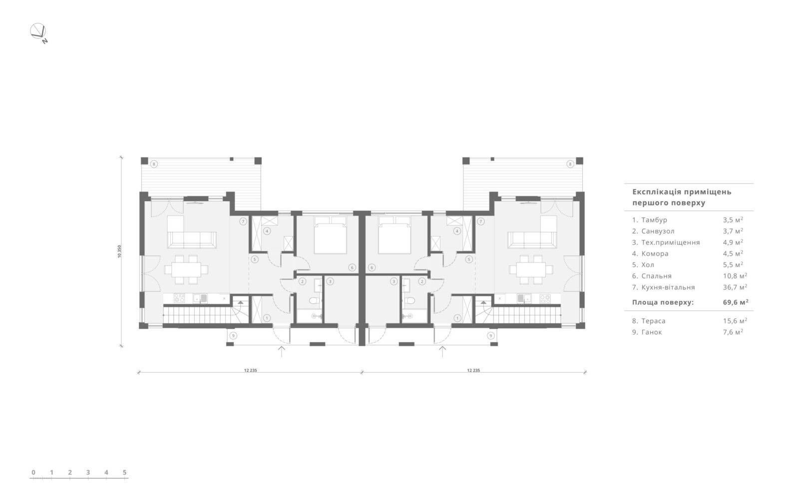
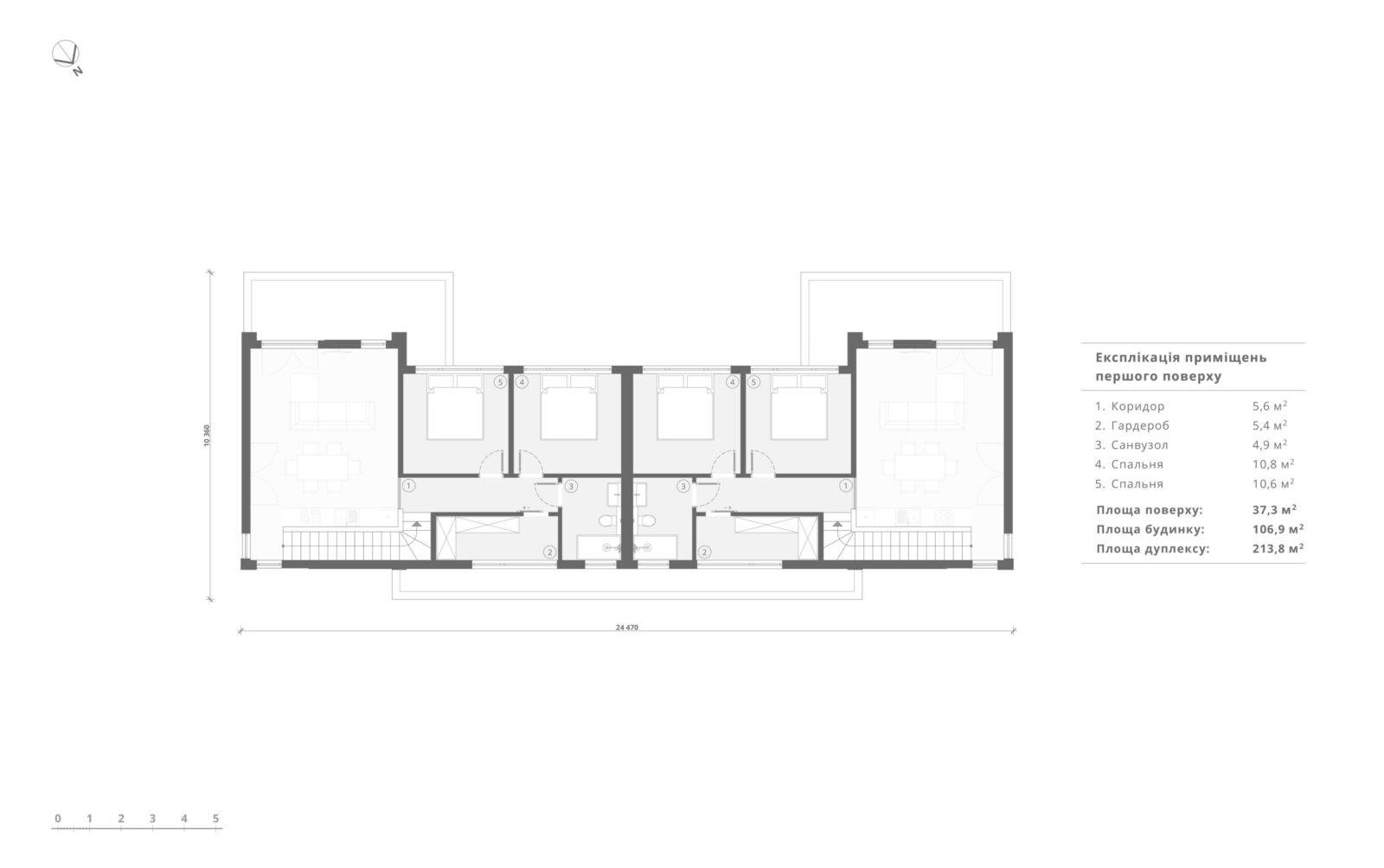
Планування однієї частини будинку достатньо компактне, адже у 115 м2 вмістилася простора зона кухні-вітальні на 37 м2, де в комфорті буде проводити час разом вся родина. Крім того знайшлося місце аж для трох спален по 11 м2, одна з яких гостьова і знаходиться на першому поверсі. Таким чином приватний простір господарів зосереджено на другому поверсі. Головною особливістю будинку є вітальня, адже тут запроектовано друге світло: прийом, який створює ефектний простір з високою стелею та великим панорамним склінням. Завершальною частиною є тераса у 15 м2, на яку можна потрапити з вітальні і завдяки тому, що тераса під навісом можна, навіть, проводити на ній час і під дощем. А крім того завдяки тому, що дві тераси будинку розміщуються дзеркально, на ділянці утворюється невеличкий внутрішній двір, де можна збиратися всім жителям на спільну вечерю чи барбекю.

Наші менеджери нададуть безкоштовну консультацію

Скористуйтесь формою, щоб отримати оріентовну ціну за будинок під Ваші потреби.

Замовити консультацію