БУДИНОК З SIP ПАНЕЛЕЙ, 91 кв.м.

Тип:

Будинок

Місце:

Україна

Житловий будинок для двох або трьох осіб.
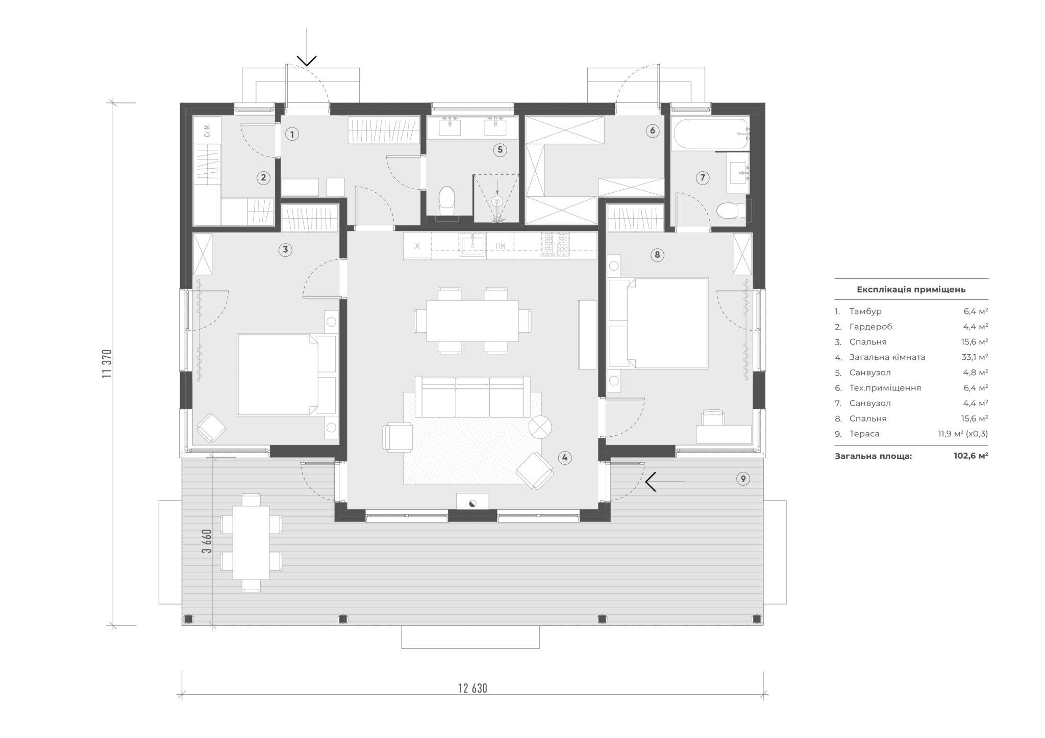
Складається з двох спальних кімнат, двох санвузлів, вхідної групи, технічного приміщення та вітальні з великим мансардним вікном, що робить її унікальним приміщенням, оскільки освітлення в ній буде змінюватись разом з рухом сонця.
Загальна площа внутрішніх приміщень будинку – 90,7 м.кв. Спальні кімнати по 15,6 м.кв. Симетричне планування, при необхідності,  дозволить спокійно віддзеркалити будинок.
На фасаді комбінуємо різні матеріали різних кольорів – камінь, яскраве дерево та штукатурка. Додаємо ламаний двоскатний дах, на який можна розмістити сонячні панелі. Це створює особливий образ заміського будинку.
По продовжній частині будинку запроєктована велика тераса, яка у літній період може слугувати основним входом до будинку. Вона поєднує вітальню та оточуюче середовище, що дозволяє будинку гармонійно вписаться в ландшафт.
Замовити консультацію
БУДИНОК З SIP ПАНЕЛЕЙ, 91 кв.м.

Огляд будинку

БУДИНОК З SIP ПАНЕЛЕЙ, 91 кв.м.

Наші менеджери нададуть безкоштовну консультацію

Скористуйтесь формою, щоб отримати оріентовну ціну за будинок під Ваші потреби.

Замовити консультацію