Будинок з SIP панелей, 240 кв.м.

Тип:

Будинок

Місце:

Україна

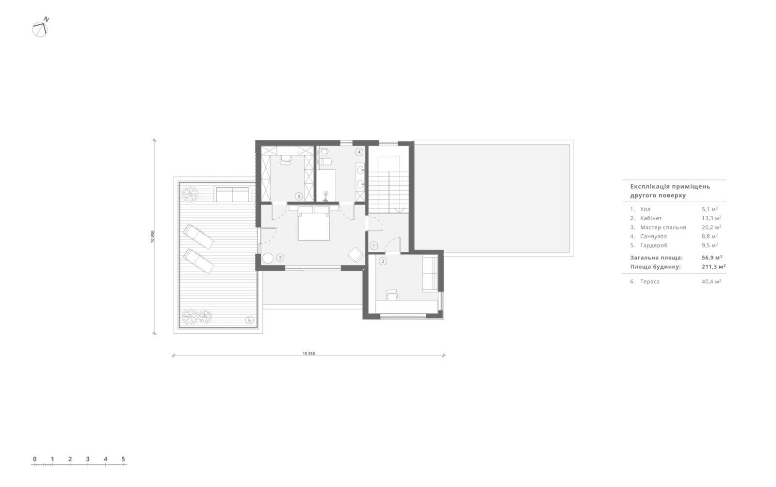
Просторий будинок для однієї родини – майже на краю землі, адже ділянка має сусідів тільки з одного боку, а все що навколо – пишні ліси. За загальною концепцією будинок має вертикальне зонування, тим самим поділяючи простір на денну зону, яка знаходиться на першому поверсі, та нічну – на другому. Господарі мають змогу прийняти багато гостей, адже в будинку є велика вітальня на 51 м2 з зоною столової та каміном, крім того на першому поверсі передбачена невеличка гостьова кімната на 10 м2, що дозволить декому залишитись на ночівлю. На другому поверсі – майстер блок зі спальнею на 20,2 м2, зі своїм гардеробом та санвузлом. Та просторий кабінет для роботи, проведення зустрічей, читання книг, або просто тихого відпочинку. Але головною особливістю цього будинку є тераса на покрівлі гаража, на якій можна проводити захід сонця або приймати сонячні ванни. Фасад передбачено в сірих тонах з додаванням акцентів у вигляді оздоблення деяких ділянок деревом. І саме завдяки цьому цей будинок гармонійно вписується зелену навколишнє середовище

Замовити консультацію
Будинок з SIP панелей, 240 кв.м.

Огляд будинку

Будинок з SIP панелей, 240 кв.м.

Наші менеджери нададуть безкоштовну консультацію

Скористуйтесь формою, щоб отримати оріентовну ціну за будинок під Ваші потреби.

Замовити консультацію