Будинок з SIP панелей, 170 кв.м.

Тип:

Будинок

Місце:

Україна

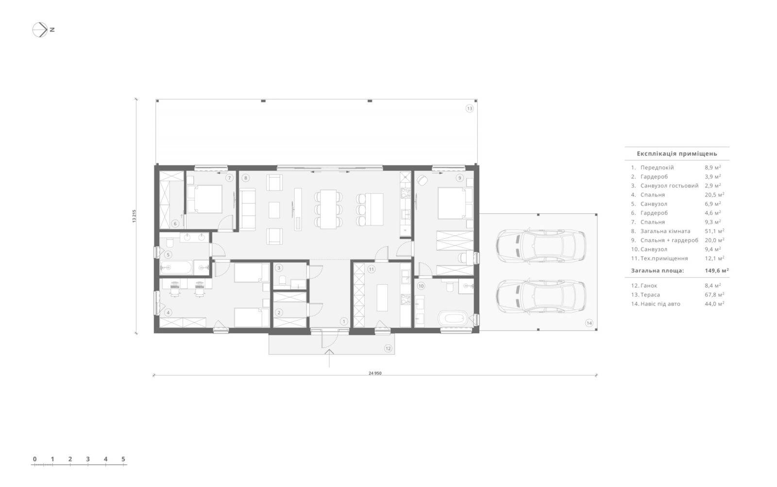
Вашій увазі пропонуємо проект гостьового будинку загальною площею 170 кв.м. Це гостьовий будинок, що розташований на початку ділянки. Він буде слугувати також і вхідною групою до основного будинку. Для зручності перебування в будинку запроектовані три спальні: майстер спальня з санвузлом і гардеробом і дві дитячі спальні зі спільним санвузлом. Вхідна група обладнана гардеробом, гостьовим санвузлом і тих. приміщенням. Центральним місцем є кімната студія 50 кв.м. з високими стелями 4.5м. Скління, велика розсувна система з видом на річку, наповнює кімнату денним світлом. Основна висота стель в будинку 3,5м

Замовити консультацію
Будинок з SIP панелей, 170 кв.м.

Огляд будинку

Будинок з SIP панелей, 170 кв.м.

Наші менеджери нададуть безкоштовну консультацію

Скористуйтесь формою, щоб отримати оріентовну ціну за будинок під Ваші потреби.

Замовити консультацію