Будинок з SIP панелей, 147 кв.м.

Тип:

Будинок

Місце:

Україна

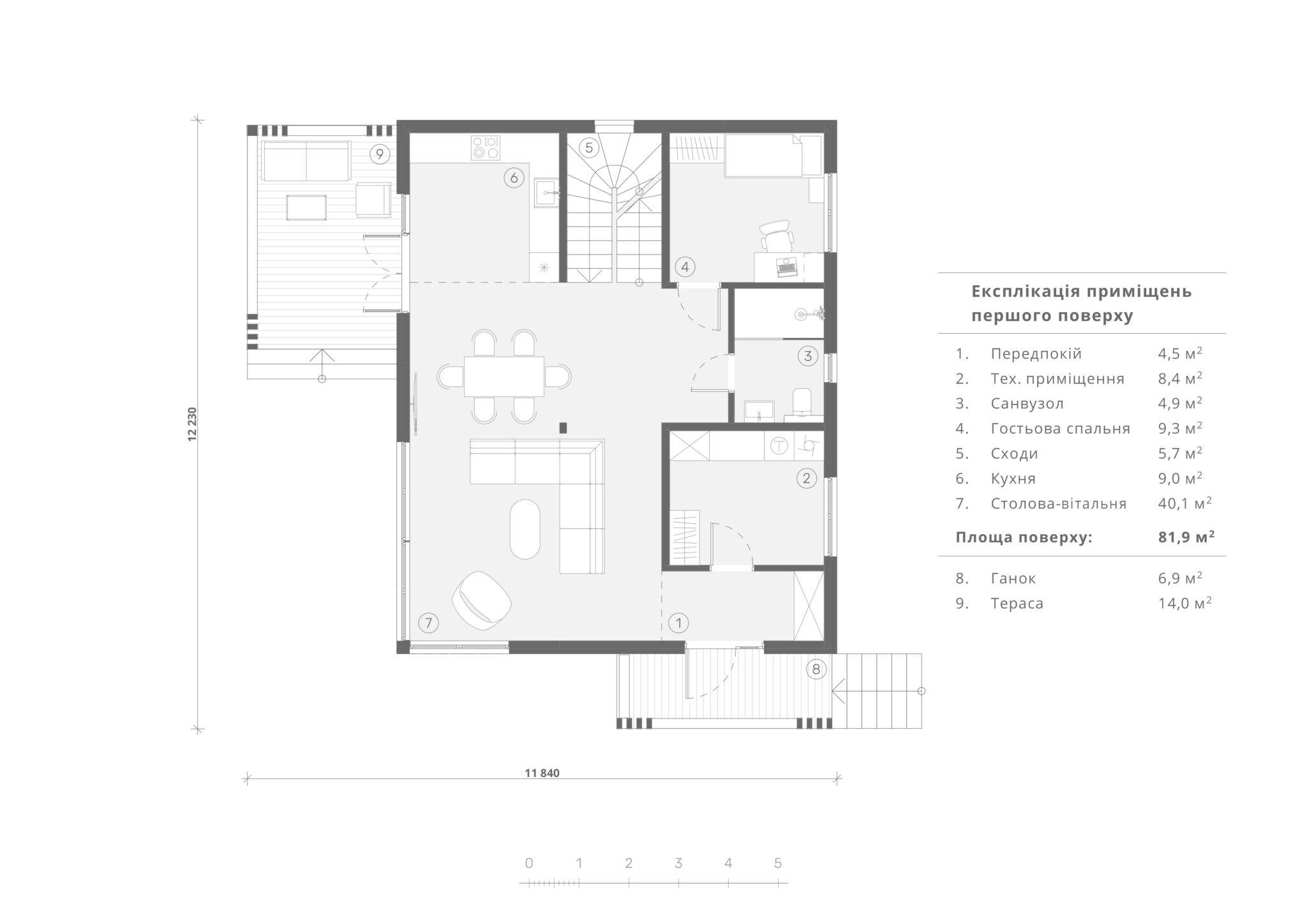
Двоповерховий будинок серед сосен загальною площею 147м2. Компактне планування передбачає спальну зону із трьома спальнями та ванною на другому поверсі. Це забезпечує тишу та відокремленість. Із коридору веде вхід на горище. На першому поверсі розміщена гостьова спальня/кабінет, тех.приміщення та гостьовий санвузол. Відчуття великого світлого простору дає відкрита кухня-вітальня з другим світлом та великими вікнами на першому поверсі. З кухні є вихід на невелику криту терасу, на якій комфортно снідати або пити чай з видом на сосни.

Замовити консультацію
Будинок з SIP панелей, 147 кв.м.

Огляд будинку

Будинок з SIP панелей, 147 кв.м.

Наші менеджери нададуть безкоштовну консультацію

Скористуйтесь формою, щоб отримати оріентовну ціну за будинок під Ваші потреби.

Замовити консультацію