Компактный дом из SIP-панелей, 61,1 м2

Номер проекта:

075 - SLT

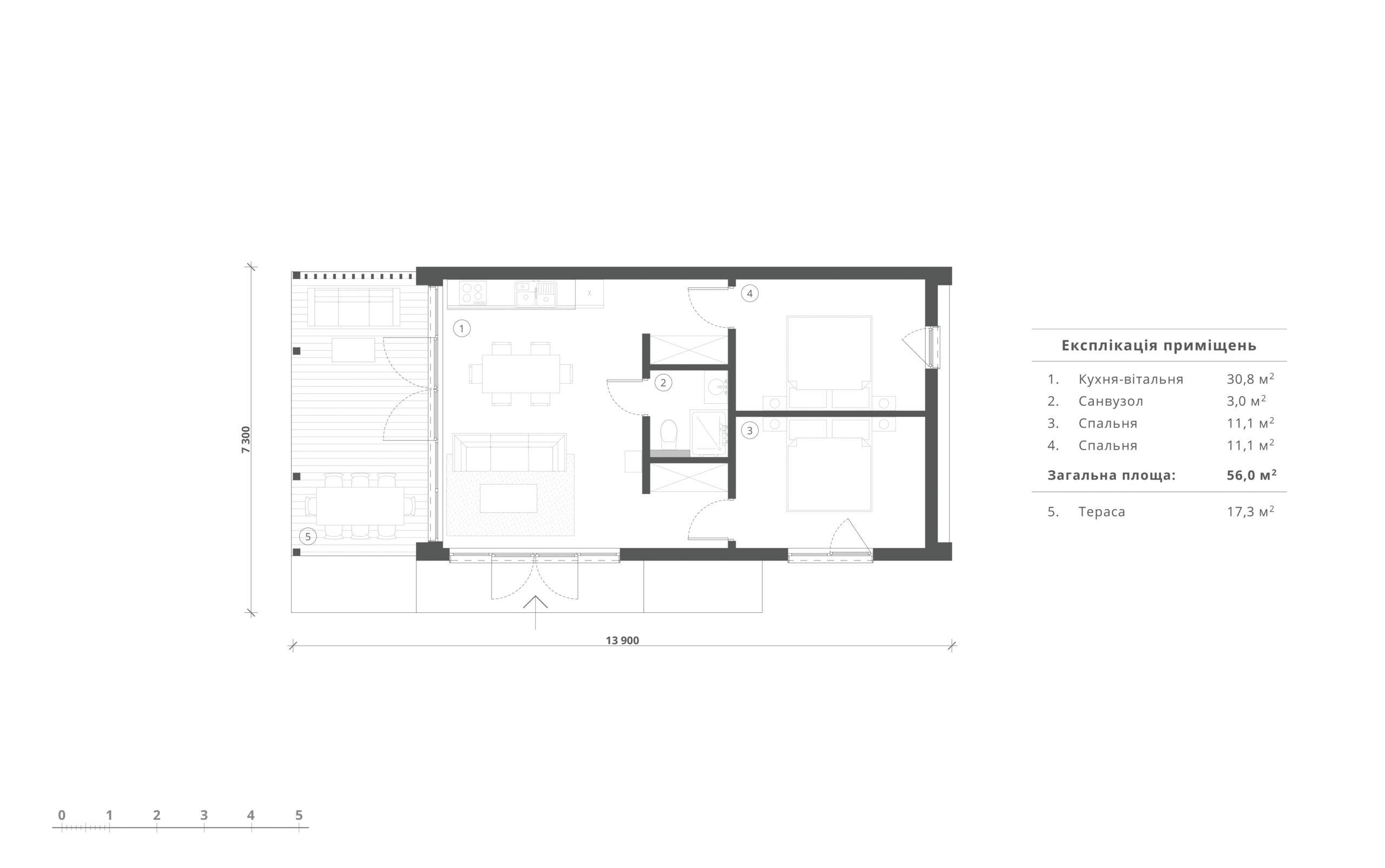
Компактный дом с двумя спальнями, одним санузлом и общей комнатой.

В левой части расположены гостиная, через которую осуществляется основной вход в дом, и кухня с обеденным столом на шесть персон. Общая площадь этой комнаты – 31 м², из нее есть выход на террасу площадью 18 м².

Справа находятся санузел (3 м²), гардеробные и спальни, каждая по 11 м².

Большое количество окон создает ощущение, что прилегающая территория является продолжением дома.

Этот дом может быть как полноценным жильем для постоянного проживания, так и загородным домом для отдыха.

Заказать консультацию
Компактный дом из SIP-панелей, 61,1 м2

Обзор дома

Компактный дом из SIP-панелей, 61,1 м2

Наши менеджеры предоставят бесплатную консультацию.

Воспользуйтесь формой, чтобы получить ориентировочную цену за дом под Ваши потребности.

Заказать консультацию