Частный дом для семьи с детьми из SIP-панелей, 230 кв.м.

Частный дом для семьи с детьми из SIP-панелей, 230 кв.м.

Частный дом для семьи с детьми по технологии SIP

Номер проекта:

096 - КHM

Тип:

Дом

Локация:

Украина

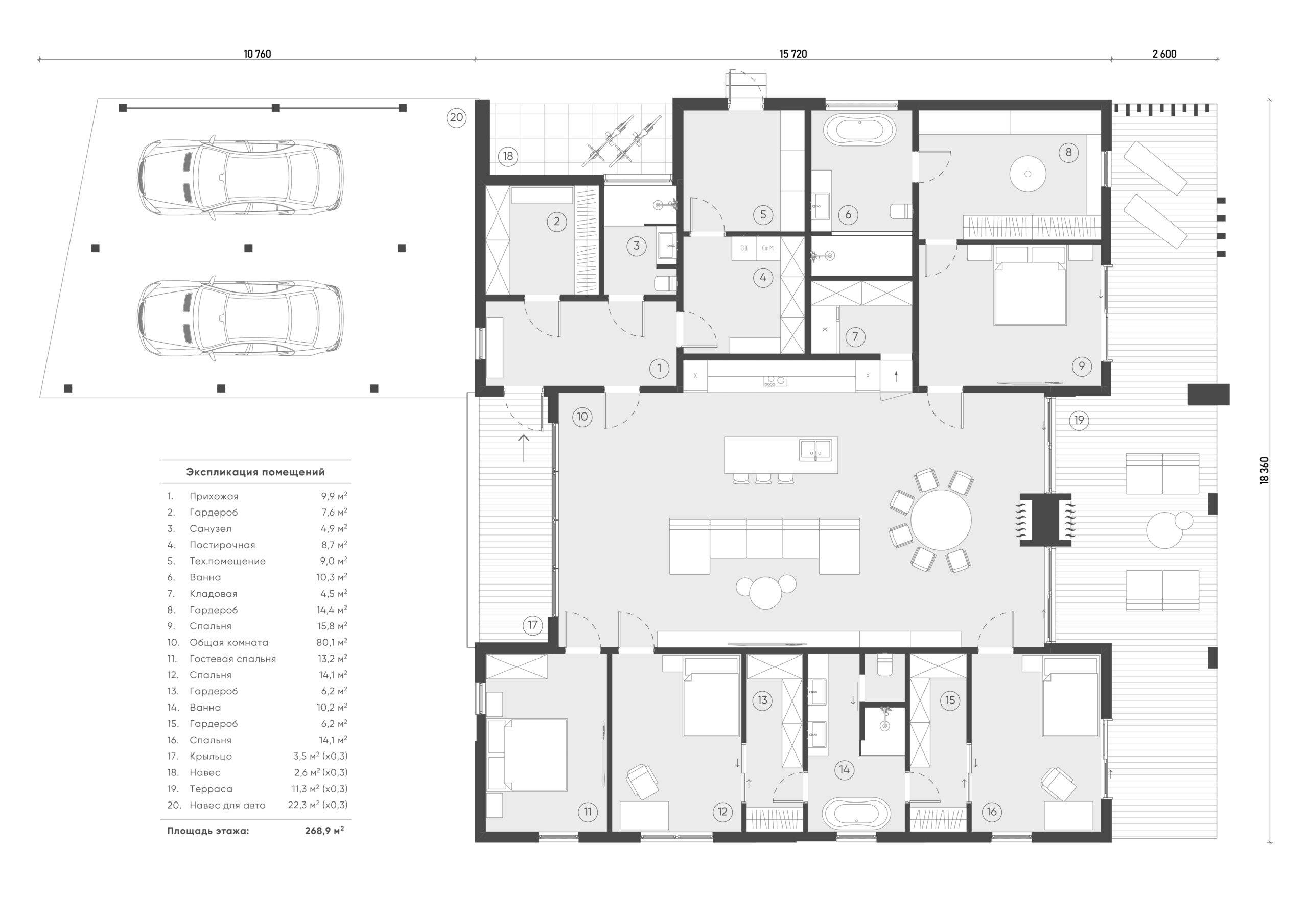
Одноэтажный дом площадью 230 м² был спроектирован для семьи с двумя детьми. Продуманная планировка со всеми необходимыми помещениями обеспечивает комфортное проживание. Акцентом дома является кухня-гостиная с каминной зоной, большие панорамные окна которой придают лёгкость и открывают красивый вид на внутренний двор. Мастер-блок и детские комнаты расположены отдельно, каждая со своим санузлом и гардеробной. Технические помещения объединены в отдельную зону с дополнительным входом с улицы. Разная высота помещений, террасы и навес для машины создают уникальный облик дома.

Заказать консультацию
Частный дом для семьи с детьми по технологии SIP

Дом из SIP-панелей – комфорт и функциональность для всей семьи

Наши менеджеры предоставят бесплатную консультацию.

Воспользуйтесь формой, чтобы получить ориентировочную цену за дом под Ваши потребности.

Заказать консультацию

Частный дом для семьи с детьми из SIP-панелей

Дом из SIP-панелей – это современное и практичное решение для семей, которые ценят комфорт, энергоэффективность и надёжность. Благодаря использованию SIP-технологии строительство занимает меньше времени по сравнению с традиционными методами, а качество дома соответствует самым высоким стандартам.

Особенности проекта

Площадь дома составляет 230 м², что позволяет удобно разместить все необходимые зоны для жизни большой семьи. Просторная гостиная, кухня-столовая, несколько спален и функциональные помещения делают проект максимально удобным и продуманным. Такой дом идеально подойдёт для семьи с детьми, обеспечивая каждому члену семьи личное пространство.

Преимущества дома из SIP-панелей

  • Высокая энергоэффективность – значительное сокращение расходов на отопление и кондиционирование.
  • Быстрое строительство – возведение дома в разы быстрее традиционных технологий.
  • Экологичные и безопасные материалы.
  • Современный дизайн и просторная планировка.
  • Долговечность и устойчивость к внешним факторам.

Энергоэффективность и комфорт

Благодаря SIP-панелям в доме сохраняется тепло зимой и прохлада летом, что создаёт комфортный микроклимат в любое время года. Такие технологии позволяют экономить на коммунальных расходах, при этом обеспечивая высокий уровень комфорта для всей семьи.

Для кого подходит проект?

Данный дом станет отличным выбором для семьи с детьми, которая ищет просторное и функциональное жильё. Продуманная планировка обеспечивает удобство для всех членов семьи, а большие окна наполняют помещения естественным светом.

Альтернативные проекты

Если вы хотите рассмотреть разные варианты, обратите внимание на барнхауз из SIP-панелей, который отличается другим архитектурным стилем и также сочетает энергоэффективность и современный дизайн. Это позволит выбрать проект, наиболее подходящий именно для вашей семьи.

Заключение

Дом из SIP-панелей площадью 230 м² – это сочетание надёжности, функциональности и современного стиля. Он станет уютным и безопасным пространством для семьи с детьми, обеспечивая комфортное проживание и гармонию для всех её членов.