Сучасний двоповерховий будинок з SIP-панелей, 270,7 кв.м.

Сучасний двоповерховий будинок з SIP-панелей, 270,7 кв.м.

Сучасний двоповерховий будинок з SIP-панелей, 149,6 кв.м.

Номер проєкту:

205 - NHDS

Великий, комфортний, стильний будинок.

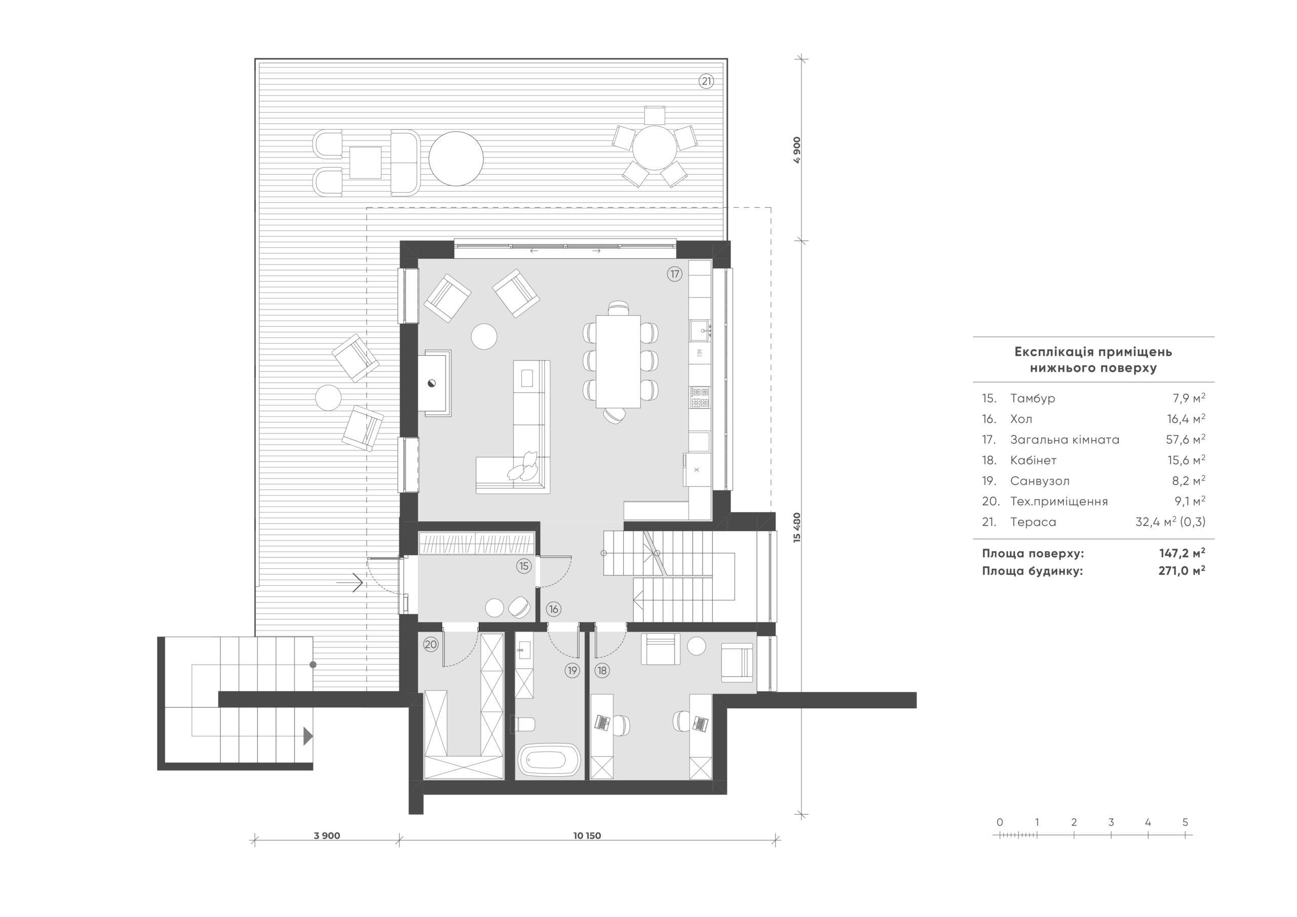
Вміщує 3 спальні кімнати, три санвузли, кабінет, гардеробні кімнати, простору вітальню поєднану з кухнею та великою терасою.

Будинок двоповерховий і розміщений на пагорбі, тому вхід і спальні кімнати розміщені на верхньому рівні, тоді як зона відпочинку з великим панорамним вікном та виходом на велику терасу  на нижньому рівні будинку.

Таке зонування дає можливість розділити гучні та тихі зони. Також вхід в будинок може відбуватись через нижній рівень, тому ми запроєктували вуличні сходи, які поєднують верхній рівень ділянки і нижній (терасу), також вони є естетичним акцентом ландшафту ділянки.

Крім того, другий поверх розділений на декілька рівнів за допомогою зміни висоти підлоги. Це дозволило нам збільшити висоту загального приміщення, яке знаходяться нижче.

Мінімалістичні фасадні рішення та їх освітлення будинку підкреслюють форми будинку і дають можливість чітки зчитувати об’єми та їх значення.

Масивність будинку нівелюються за допомогою скління приміщень, перепаду висот ландшафту, світлих фасадних матеріалів, конструкції тераси та простоти форм.

Ми прагнули створити гармонійний простір, де кожен елемент підкреслює функціональність та естетичну цінність будинку.

Замовити консультацію
Сучасний двоповерховий будинок з SIP-панелей, 149,6 кв.м.

Сучасний двоповерховий будинок з SIP-панелей, 149,6 кв.м.

Наші менеджери нададуть безкоштовну консультацію

Скористуйтесь формою, щоб отримати оріентовну ціну за будинок під Ваші потреби.

Замовити консультацію