Приватний будинок для родини з дітьми з SIP-панелей, 230 кв.м.

Приватний будинок для родини з дітьми з SIP-панелей, 230 кв.м.

Приватний будинок для родини з дітьми з SIP-панелей, 230 кв.м.

Номер проєкту:

096 - КHM

Тип:

Будинок

Локація:

Україна

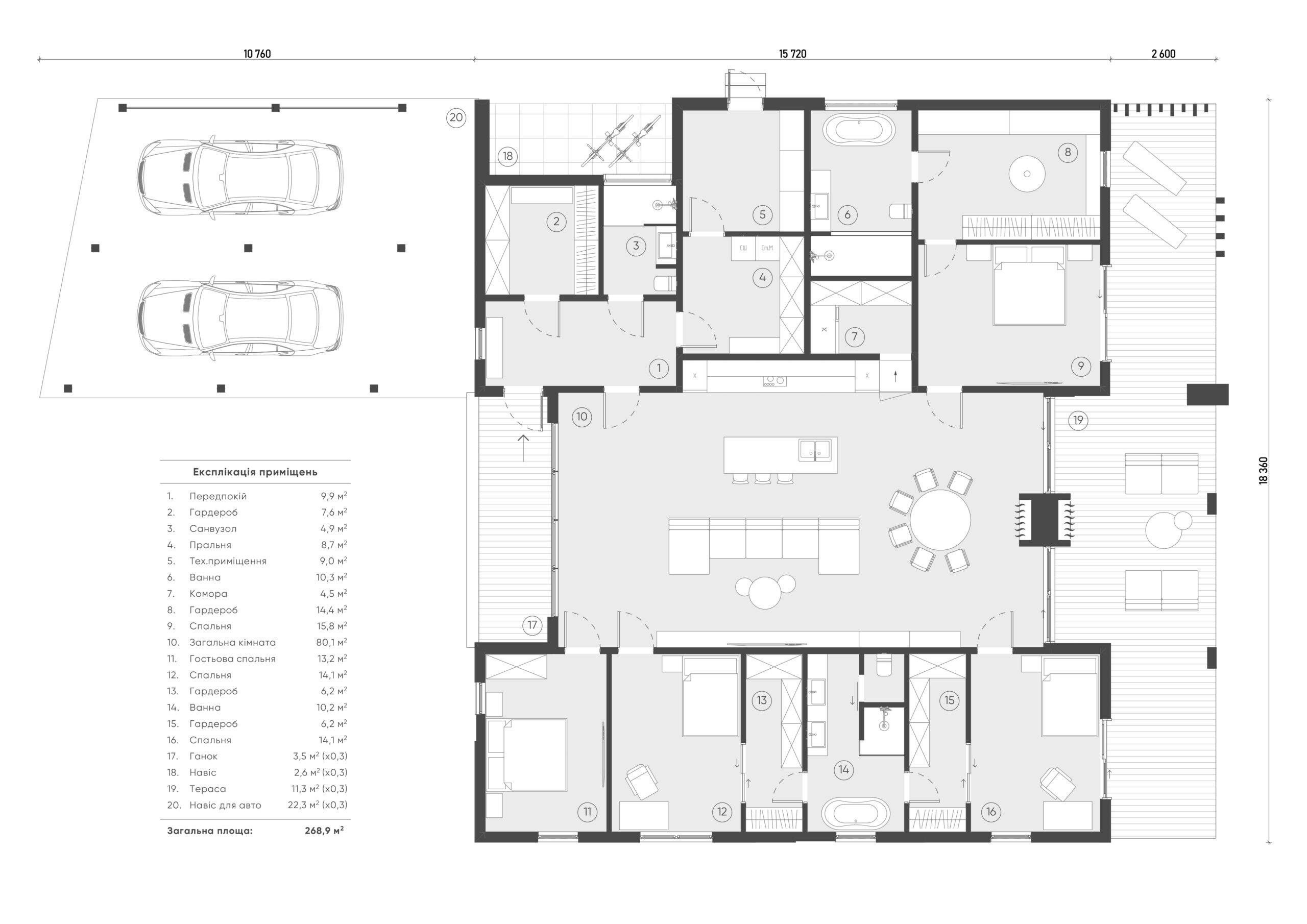
Одноповерховий будинок на 230м2 проектувався для родини із двома дітьми. Продумане планування із усіма необхідними приміщеннями забезпечить комфортне проживання родини. Акцентом є кухня-вітальня із камінною зоною, великі панорамні вікна якої дають легкість і відкривають красивий вид на внутрішній двір. Окремо розташовується майстер блок і дитячі кімнати із своїм сан.вузлом та гардеробними. Технічні приміщення розміщені разом та виділені в окрему зону зі своїм додатковим входом з вулиці. Різна висотність приміщень, тераси, навіс для машини створюють свій унікальний образ будинку.

Замовити консультацію
Приватний будинок для родини з дітьми з SIP-панелей, 230 кв.м.

Приватний будинок для родини з дітьми з SIP-панелей, 230 кв.м.

Наші менеджери нададуть безкоштовну консультацію

Скористуйтесь формою, щоб отримати оріентовну ціну за будинок під Ваші потреби.

Замовити консультацію