Барнхауз із SIP-панелей для відпочинку, 267,7 м2

Барнхауз із SIP-панелей для відпочинку, 267,7 м2

Барнхауз для відпочинку з SIP-панелей

Номер проєкту

172 - ULN

Тип:

Будинок

Місце:

Україна

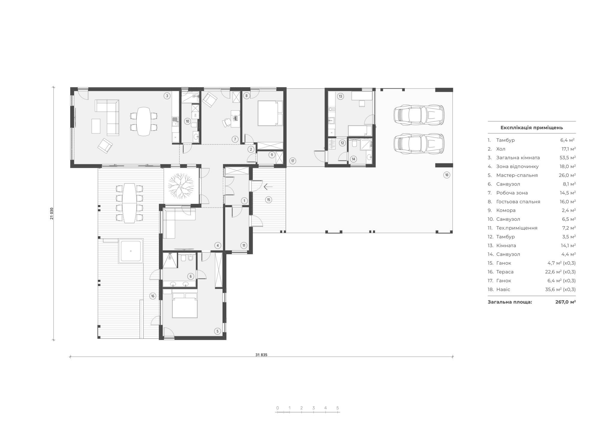
Основна функція цього будинку – відпочинок, адже локація, ділянка, планування та сама архітектура спонукають до цього. Вже на вході в будинок ми бачимо сад та приватну ділянку завдяки великим вікнам, що формує зв’язок архітектури та природи. 

Будинок складається з двох основних частин: будинок охорони та будинок господарів. Ці частини поєднані між собою навісами та невеликою терасою, що додає цілісності. Крім того ці блоки умовно відокремлені, що дозволяє не перетинатися господарям та персоналу, зберігаючи приватність. Окрім просторої вітальні, майстер та гостьової спальні є ще робоча зона та невелика зона відпочинку, вони не відокремлені як кімнати, щоб зберегти відчуття відкритого простору. 

Тераса у цьому будинку – дворівнева. На верхньому рівні є місце для великого обіднього столу, а на нижньому запроектовано джакузі, крім того верхній рівень може використовуватись, як місця для сидіння. 

Архітектура проста, з використанням світлих кольорів, які гармонійно поєднуються з оточуючою зеленню.

Замовити консультацію
Барнхауз для відпочинку з SIP-панелей

Барнхауз для відпочинку – стиль, простір і комфорт у сучасному форматі

Барнхауз із SIP-панелей для відпочинку, 267,7 м2

Наші менеджери нададуть безкоштовну консультацію

Скористуйтесь формою, щоб отримати оріентовну ціну за будинок під Ваші потреби.

Замовити консультацію

Барнхауз для відпочинку з SIP-панелей

Барнхауз для відпочинку – це сучасний архітектурний стиль, що поєднує простоту форм, відкритий простір та високу функціональність. Будинок, зведений за технологією SIP-панелей, забезпечує швидке будівництво, енергоефективність та комфорт для постійного проживання і відпочинку.

Особливості проекту

Барнхауз площею 267,7 м² відзначається просторими кімнатами та великою площею скління. Панорамні вікна створюють відчуття єдності з природою, наповнюють приміщення світлом і дарують атмосферу затишку. Високі стелі та відкрите планування дозволяють максимально раціонально використовувати площу.

Переваги барнхауса для відпочинку

  • Сучасний дизайн із акцентом на мінімалізм і функціональність.
  • Велика площа для сімейного відпочинку або прийому гостей.
  • Енергоефективність завдяки використанню SIP-панелей.
  • Швидке будівництво без втрати якості.
  • Можливість адаптувати планування під індивідуальні потреби.

Енергоефективність і комфорт

Завдяки SIP-технології барнхауз відрізняється високим рівнем теплоізоляції. Це дозволяє значно скоротити витрати на опалення взимку й кондиціонування влітку. У результаті мешканці отримують сучасне, стильне та водночас економне у використанні житло.

Для кого підходить цей проект?

Такий барнхауз для відпочинку ідеально підходить для сімей, які прагнуть простору та комфорту. Він чудово виконує роль заміського котеджу, але водночас є повноцінним житлом для постійного проживання. Його архітектура створює відчуття свободи та гармонії з навколишнім середовищем.

Альтернативні проекти

Якщо ви шукаєте інші рішення, зверніть увагу на сучасний двоповерховий будинок, який поєднує компактність, функціональність і стиль. Це дозволить обрати саме той формат житла, який найбільше відповідає вашим очікуванням.

Висновок

Барнхауз для відпочинку площею 267,7 м² – це сучасний, просторий і затишний будинок, створений для комфортного життя та релаксу. Він стане ідеальним місцем для сімейного дозвілля, відпочинку на природі та постійного проживання.