Просторий будинок із SIP-панелей на сім’ю з двох осіб, 174,6 м2

Просторий будинок із SIP-панелей на сім’ю з двох осіб, 174,6 м2

Просторий будинок із SIP-панелей на сім’ю з двох осіб, 174,6 м2

Номер проєкту

185 - ROZ

Тип:

Будинок

Місце:

Україна

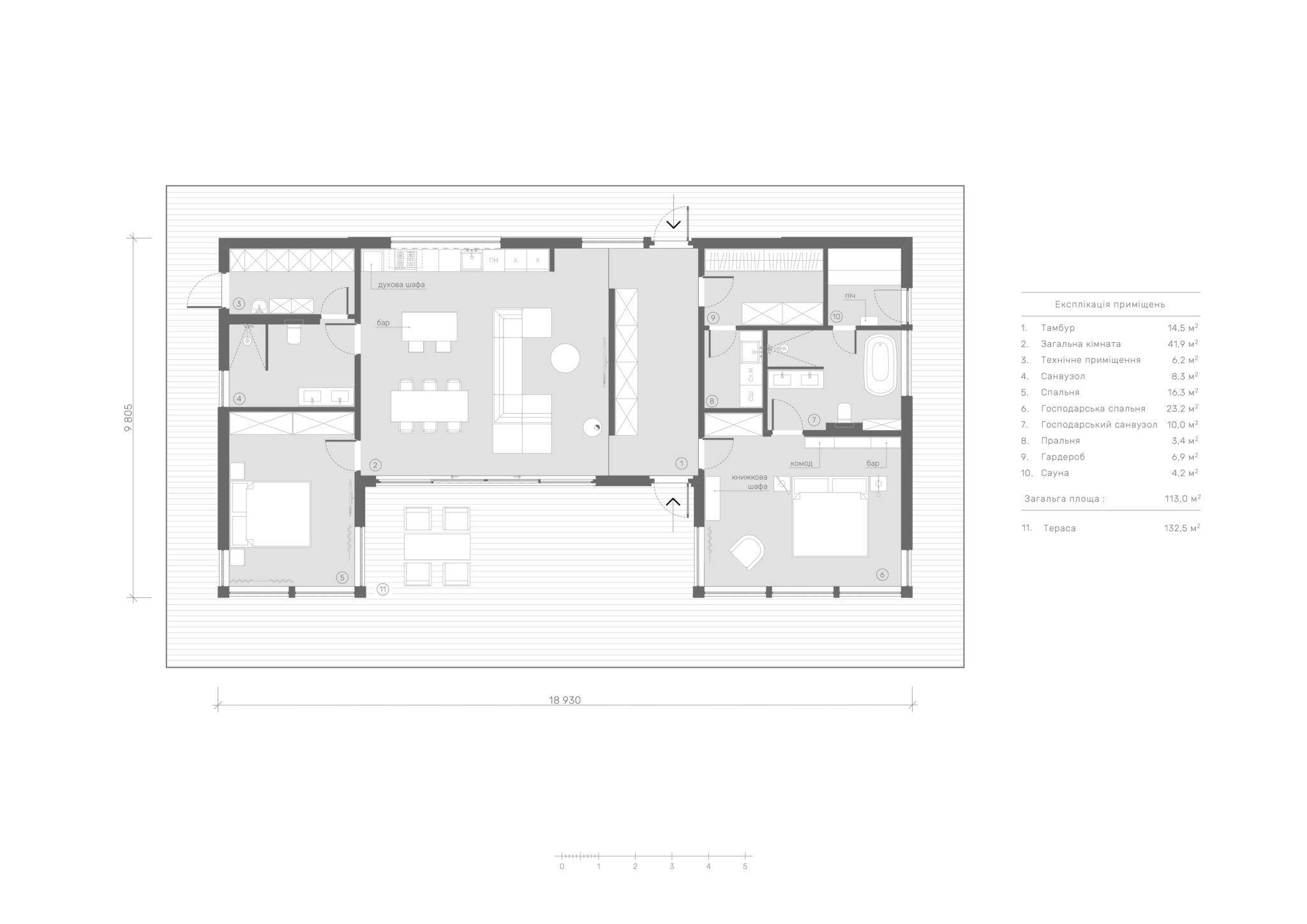
Просторий будинок на сім’ю з двох осіб. Будинок складається з двух спальних кімнат, двух санвузлів, сауни, великої вітальні з каміном та технічних приміщень. Навколо будинку запроєктована терраса. Архітектура будинку – плоский дах з консоллю по периметру будинку; над зоною вітальні стеля вище, ніж в усьому будинку, це додає простору приміщенню. Спокійні природні віддінки оздоблення фасаду ідеально вписують його в середовище, а завдяки великим вікнам будинок стає продовженням території. Основні приміщення виходять на озеро. В будинку запроєктовані два основні входи: з головного фасаду через видову терасу та з задньої частини будинку. Вони розташовані один навпроти одного та мають скляне полотно, це створює ефект відкритості та прозорості будинку.

Замовити консультацію
Просторий будинок із SIP-панелей на сім’ю з двох осіб, 174,6 м2

Огляд будинку

Просторий будинок із SIP-панелей на сім’ю з двох осіб, 174,6 м2

Наші менеджери нададуть безкоштовну консультацію

Скористуйтесь формою, щоб отримати оріентовну ціну за будинок під Ваші потреби.

Замовити консультацію