Будинок в органічному стилі з SIP-панелей, 155,82 м2

Будинок в органічному стилі з SIP-панелей, 155,82 м2

Будинок в органічному стилі з SIP-панелей, 155,82 м2

Номер проєкту

148 - RMN

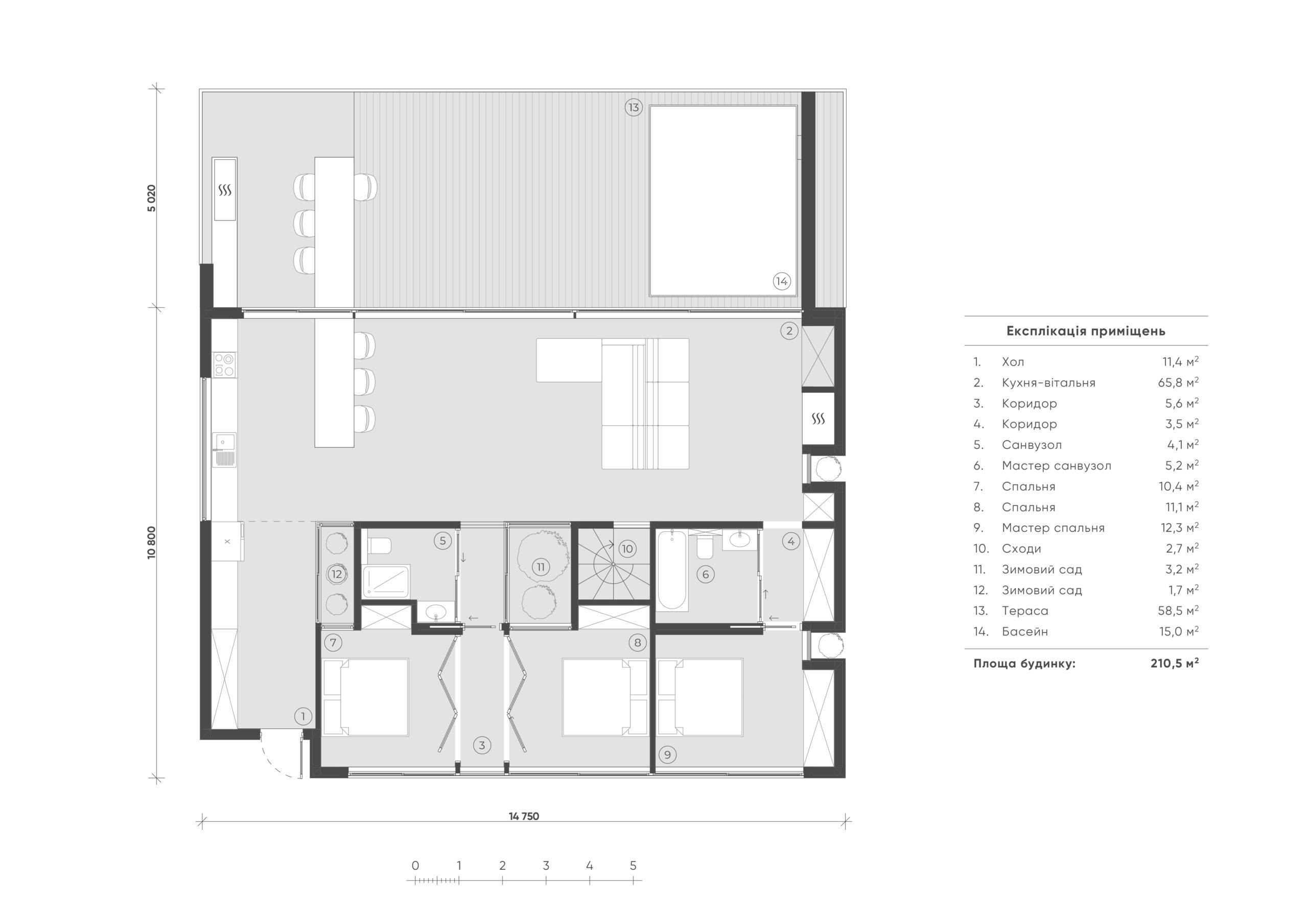
Основна концепція цього будинку – простір, в якому інтер’єр напряму працює з природою. Інтер’єр та екстер’єр плавно перетікають один в одного, створюючи гармонію і єдність. Під впливом природних елементів, таких як камінь, дерево та штукатурка, ми створили атмосферу, де легкість і спокій поєднуються зі смаком та стилем.

Цей проєкт розроблений так, щоб максимізувати використання природного світла. Широкі вікна та скляні двері дозволяють сонцю засяяти всередині, даруючи відчуття світлості і простору. А один із основних акцентів цього будинку – зимові сади з деревами за склом. Ці спеціальні зони дозволяють природі стати не просто окремим елементом дизайну, але й активним учасником інтер’єру, надаючи приміщенню додаткового світла та зв’язку з природою.

Інтер’єр цього будинку може трансформуватися за допомогою рухомих перегородок, надаючи власникам свободу регулювати простір під свої потреби і настрій. 

Не менш важливою є велика тераса з окремою зоною для барбек’ю та невеликим басейном. Це ідеальне місце, де зранку можна поснідати, відпочити в тиші, попрацювати та влаштовувати сімейні свята та зустрічі з друзями. 

Автор концепції – архітектор Alberto Foyo, професор архітектури в Колумбійському університеті (Нью-Йорк).

Замовити консультацію
Будинок в органічному стилі з SIP-панелей, 155,82 м2

Огляд будинку

Будинок в органічному стилі з SIP-панелей, 155,82 м2

Наші менеджери нададуть безкоштовну консультацію

Скористуйтесь формою, щоб отримати оріентовну ціну за будинок під Ваші потреби.

Замовити консультацію